192 Будівництво та цивільна інженерія

Ознайомтеся з нашою колекцією елементів

203 елементів
Розширений пошук
9. Привар Р.М. Дипломна робота
Двоповерховий котедж з активними елементами у м. Одеса

Для проектуємого котеджного будинку прийнятий майданчик в місті Одеса. До котеджної ділянки перед...

2024/02/02 1
6. Нікітенко І.Ю. Дипломна робота
Проектування будівлі дитячого садка на 120 місць

Будівля дитячого садка на 120 місць відноситься до групи громадських будівель для освіти, вихован...

2024/02/02 1
7. Овчаренко Р.Б. Дипломна робота
П’ятиповерховий житловий будинок з першим поверхом громадського обслуговування

Запроектований об’єкт – житловий будинок з першим поверхом громадського обслуговування. Будинок п...

2024/02/02 1
8. Понаровський П.К. Дипломна робота
Шестиповерховий житловий будинок в м. Гадяч Полтавської області

Шестиповерховий житловий будинок в м. Гадяч Полтавської області. До складу приміщень житлового бу...

2024/02/02 1
5. Марченко Д.П. Дипломна робота
Секційний житловий будинок з індивідуальними приміщеннями цивільного захисту для внутрішньо переміщених осіб

Житловий будинок передбачений для постійного проживання переселенців із зони бойових дій у тому ч...

2024/02/02 1
3. Бойко А.А. Дипломна робота
5-ти поверховий житловий будинок на 48 квартир у місті Одеса

Ділянка, відведена для будівництва п’яти поверхового житлового будинку розташована в місті Одеса ...

2024/02/02 1
2. Бобир Д.В. Дипломна робота
Загальноосвітня школа на 22 класи в м. Горішні Плавні Полтавської області

Будівля розташована в місті Горішні Плавні Полтавської області. В межах міста проектується новий ...

2024/02/02 1
1. Анпілогов Р.А. Дипломна робота
Проектування житлового будинку різної поверховості у м. Полтава

Житловий будинок складається з двох частин, поверховість першої частини 5 поверхів, а другої 9 по...

2024/02/02 1
27. Романченко Тетяна Романівна Дипломна робота
Реконструкція будівлі адміністративно-побутового корпусу фабрики у м. Горішні Плавні

Найважливішою соціально-економічним завданням у поточний період є переведення економіки нашої дер...

2023/10/25 1
28. Тригубенко Олександр Володимирович Дипломна робота
Дослідження тривалості інсоляції території житлової групи по вул. Великотирнівська у м. Полтава

Комфортне проживання мешканців житлової групи забезпечується відповідним рівнем температури повіт...

2023/10/25 1
25. Мостовюк Ігор Андрійович Дипломна робота
Отримання залежностей для розрахунку лінійних коефіцієнтів теплопередачі ділянок огороджувальних конструкцій з теплопровідними включеннями

Сучасні нормативні документи дають досить обмежену кількість лінійних коефіцієнтів теплопередачі....

2023/10/25 1
24. Моргун Анастасія Григорівна Дипломна робота
Аналіз планувальних рішень кооперованих будівель на прикладі магазину - кафе в смт. Опішня Полтавської обл.

В даний час спостерігається тенденція зростання кількості підприємств громадського харчування. Ха...

2023/10/25 1
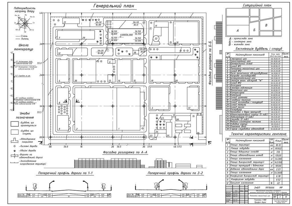
23. Микитюк Денис Ігорович Дипломна робота
Цех по ремонту і технічному обслуговуванню спеціальної техніки, м. Запоріжжя

Робота присвячена актуальній науково-технічній задачі проектування конструкцій на прикладі виробн...

2023/10/25 1
22. Маляренко Ігор Ростиславович Дипломна робота
Методи реконструкції та модернізації існуючого дошкільного фонду України

Реконструкція та капітальний ремонт стали одним із головних напрямків у галузі капітального будів...

2023/10/24 1
21. Кривенко Іван Вікторович Дипломна робота
Дослідження теплозахисних властивостей цегляної кладки зовнішніх стін

Поліпшення теплозахисних властивостей огороджуючих традиційних конструкційних матеріалів і викор...

2023/10/24 1
20. Колісник Ірина Миколаївна Дипломна робота
Нове будівництво міні-забійного пункту птиці в с.Велика Круча Полтавської області

Нове будівництво міні забійного цеху - є вигідним бізнес-вкладенням, оскільки дозволяють організу...

2023/10/24 1
19. Ковальчук Андрій Володимирович Дипломна робота
Варіантне проектування молочного цеху в с. Супрунівка Полтавської області

Робота присвячена актуальній науково-технічній задачі варіантного проектування конструкцій на при...

2023/10/24 1
18. Зуй Назар Сергійович Дипломна робота
Реконструкція закладів охорони здоров’я

Метою роботи є аналіз технічного стану будівельних конструкцій закладів охорони здоров’я на осно...

2023/10/24 1
17. Дроздюк Анастасія Валеріївна Дипломна робота
Благоустрій кварталу з реконструкцією житлового будинку

На сьогодні залишається все менше не освоєних територій і проблема збільшення ефективності викори...

2023/10/24 1
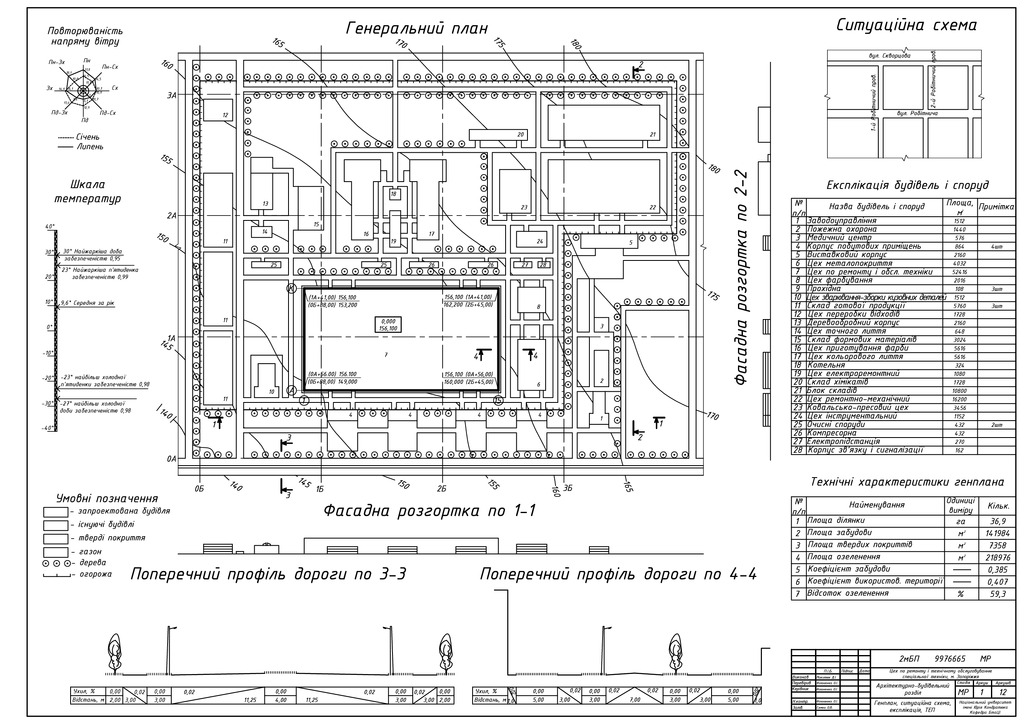
16. Демиденко Олександр Петрович Дипломна робота
Удосконалення металевих конструкцій ремонтно-механічного цеху виробничої бази, м. Житомир

Робота присвячена будівництву ремонтно-механічного цеху виробничої бази із удосконаленням металев...

2023/10/24 1
14. Воловик Яна Віталіївна Дипломна робота
Дослідження умов інсоляції квартир житлового будинку по вул. Нікітченка у м. Полтава

В умовах щільної забудови спостерігаються значні труднощі по виконанню норм інсоляції у приміщенн...

2023/10/24 1
13. Бєдов Микола Володимирович Дипломна робота
Дослідження вологісного стану горищного перекриття Залу Урочистостей Полтавського краєзнавчого музею імені Василя Кричевського

Корозія металевих елементів відбувається внаслідок конденсації водяної пари на поверхнях кутиків ...

2023/10/24 1
12. Шитова Олександра Миколаївна Дипломна робота
Аналіз об’ємно-планувальних та конструктивних рішень житлового будівництва з урахуванням потреби проектування місць укриття

Проектування нових захисних споруд і реконструкція існуючих захисних споруд, включаючи проектуван...

2023/10/24 1
11. Супрунов Максим Олегович Дипломна робота
Оптимізація комплексу енергозберігаючих технічних рішень при капітальному ремонті

Сучасна ситуація з нормуванням енергозбереження та теплозахисту в Україні орієнтує фахівців на за...

2023/10/24 1
Двоповерховий котедж з активними елементами у м. Одеса

Для проектуємого котеджного будинку прийнятий майданчик в місті Одеса. До котеджної ділянки передбачені проїзди та тротуари з асфальтним покриттям або вимощеною бруківкою. Більша частина вікон віта...

Дипломна робота 2024/02/02
1
Проектування будівлі дитячого садка на 120 місць

Будівля дитячого садка на 120 місць відноситься до групи громадських будівель для освіти, виховання та підготовки кадрів. В плані будівля має неправильну геометричну форму. Розміри будівлі в плані ...

Дипломна робота 2024/02/02
1
П’ятиповерховий житловий будинок з першим поверхом громадського обслуговування

Запроектований об’єкт – житловий будинок з першим поверхом громадського обслуговування. Будинок п’ятиповерховий. Будівля має неправильну форму в плані. Запроектований житловий будинок шість трикімн...

Дипломна робота 2024/02/02
1
Шестиповерховий житловий будинок в м. Гадяч Полтавської області

Шестиповерховий житловий будинок в м. Гадяч Полтавської області. До складу приміщень житлового будинку окрім основного елементу квартир запроектовані вбудовані приміщення: офісні приміщення соціаль...

Дипломна робота 2024/02/02
1
Секційний житловий будинок з індивідуальними приміщеннями цивільного захисту для внутрішньо переміщених осіб

Житловий будинок передбачений для постійного проживання переселенців із зони бойових дій у тому числі людей з інвалідністю, проєктується для забудови малого міста, що дозволить збільшити щільність ...

Дипломна робота 2024/02/02
1
5-ти поверховий житловий будинок на 48 квартир у місті Одеса

Ділянка, відведена для будівництва п’яти поверхового житлового будинку розташована в місті Одеса по вулиці Шклярука. Будинок баштового типу, несучі стіни розташовані в повздовжньому напрямку. Габар...

Дипломна робота 2024/02/02
1
Загальноосвітня школа на 22 класи в м. Горішні Плавні Полтавської області

Будівля розташована в місті Горішні Плавні Полтавської області. В межах міста проектується новий житловий мікрорайон. Крім школи в межах мікрорайону передбачені дитячий садок, магазини, офісні прим...

Дипломна робота 2024/02/02
1
Проектування житлового будинку різної поверховості у м. Полтава

Житловий будинок складається з двох частин, поверховість першої частини 5 поверхів, а другої 9 поверхів, та має перепади висот вертикальних оцінок у межах кожної секції. Будинок має 4 під’їзди, кож...

Дипломна робота 2024/02/02
1
Реконструкція будівлі адміністративно-побутового корпусу фабрики у м. Горішні Плавні

Найважливішою соціально-економічним завданням у поточний період є переведення економіки нашої держави на інтенсивний шлях розвитку з метою підвищення рівня та якості праці населення та вирішення по...

Дипломна робота 2023/10/25
1
Дослідження тривалості інсоляції території житлової групи по вул. Великотирнівська у м. Полтава

Комфортне проживання мешканців житлової групи забезпечується відповідним рівнем температури повітря, його відносної вологості, рухомості, освітленості, інсоляції та шумового режиму. Прагнення забуд...

Дипломна робота 2023/10/25
1
Отримання залежностей для розрахунку лінійних коефіцієнтів теплопередачі ділянок огороджувальних конструкцій з теплопровідними включеннями

Сучасні нормативні документи дають досить обмежену кількість лінійних коефіцієнтів теплопередачі. До того ж вони наведені для сучасних огороджувальних конструкцій. Застосування їх для будинків, що ...

Дипломна робота 2023/10/25
1
Аналіз планувальних рішень кооперованих будівель на прикладі магазину - кафе в смт. Опішня Полтавської обл.

В даний час спостерігається тенденція зростання кількості підприємств громадського харчування. Харчування населення організується в основному невеликими приватними підприємствами, які надають послу...

Дипломна робота 2023/10/25
1
Цех по ремонту і технічному обслуговуванню спеціальної техніки, м. Запоріжжя

Робота присвячена актуальній науково-технічній задачі проектування конструкцій на прикладі виробничої будівлі цеху по ремонту і технічному обслуговуванню спеціальної техніки, м. Запоріжжя.

Дипломна робота 2023/10/25
1
Методи реконструкції та модернізації існуючого дошкільного фонду України

Реконструкція та капітальний ремонт стали одним із головних напрямків у галузі капітального будівництва. Їх об’єми постійно зростають. По своїй специфіці проектування та проведення робіт по реконст...

Дипломна робота 2023/10/24
1
Дослідження теплозахисних властивостей цегляної кладки зовнішніх стін

Поліпшення теплозахисних властивостей огороджуючих традиційних конструкційних матеріалів і використання нових ефективних матеріалів зумовило широке поширення цегляних стін полегшеної кладки в суч...

Дипломна робота 2023/10/24
1
Нове будівництво міні-забійного пункту птиці в с.Велика Круча Полтавської області

Нове будівництво міні забійного цеху - є вигідним бізнес-вкладенням, оскільки дозволяють організувати обробку м'ясної сировини за всіма встановленими правилами. Воно оснащене сучасним високотехноло...

Дипломна робота 2023/10/24
1
Варіантне проектування молочного цеху в с. Супрунівка Полтавської області

Робота присвячена актуальній науково-технічній задачі варіантного проектування конструкцій на прикладі одноповерхової виробничої каркасної будівлі молочного цеху, а також освоєння європейських норм...

Дипломна робота 2023/10/24
1
Реконструкція закладів охорони здоров’я

Метою роботи є аналіз технічного стану будівельних конструкцій закладів охорони здоров’я на основі оцінки залишкового ресурсу за результатами технічного діагностування.

Дипломна робота 2023/10/24
1
Благоустрій кварталу з реконструкцією житлового будинку

На сьогодні залишається все менше не освоєних територій і проблема збільшення ефективності використання міських земель стає все більш актуальною. Одним із шляхів рішення цієї проблеми є реконструкц...

Дипломна робота 2023/10/24
1
Удосконалення металевих конструкцій ремонтно-механічного цеху виробничої бази, м. Житомир

Робота присвячена будівництву ремонтно-механічного цеху виробничої бази із удосконаленням металевих конструкцій у м. Житомир. Раціональність будівництва обумовлюється тим, що на території забудови ...

Дипломна робота 2023/10/24
1
Дослідження умов інсоляції квартир житлового будинку по вул. Нікітченка у м. Полтава

В умовах щільної забудови спостерігаються значні труднощі по виконанню норм інсоляції у приміщеннях та територіях. У зв’язку з цим при проектуванні планувального рішення будівель, орієнтації будинк...

Дипломна робота 2023/10/24
1
Дослідження вологісного стану горищного перекриття Залу Урочистостей Полтавського краєзнавчого музею імені Василя Кричевського

Корозія металевих елементів відбувається внаслідок конденсації водяної пари на поверхнях кутиків та планки. Це в свою чергу можливо при недостатньому опорі теплопередачі горищного перекриття, низьк...

Дипломна робота 2023/10/24
1
Аналіз об’ємно-планувальних та конструктивних рішень житлового будівництва з урахуванням потреби проектування місць укриття

Проектування нових захисних споруд і реконструкція існуючих захисних споруд, включаючи проектування швидкозводимих захисних споруд, споруд подвійного призначення, а також реконструкцію приміщень, б...

Дипломна робота 2023/10/24
1
Оптимізація комплексу енергозберігаючих технічних рішень при капітальному ремонті

Сучасна ситуація з нормуванням енергозбереження та теплозахисту в Україні орієнтує фахівців на застосування вельми обмеженого набору рішень щодо зниження енергоспоживання, які не завжди відповідают...

Дипломна робота 2023/10/24
1