Дипломна робота
Кваліфікаційна робота здобувача вищої освіти
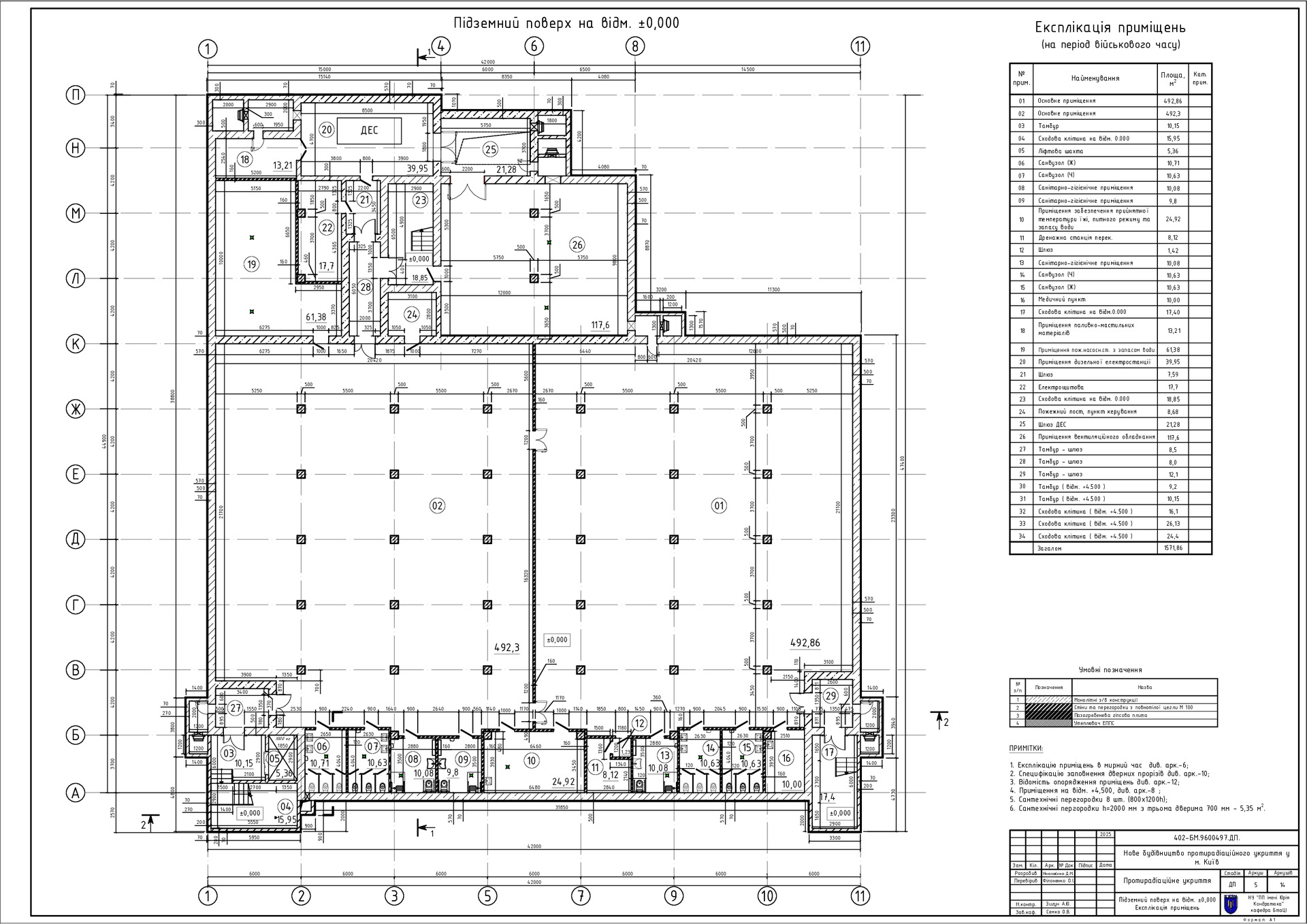
Нове будівництво протирадіаційного укриття у м. Київ
ID елемента: 20577
1 Медіафайлів
2025/12/11
Скопійовано в буфер обміну
