Дипломна робота
Кваліфікаційна робота здобувача вищої освіти
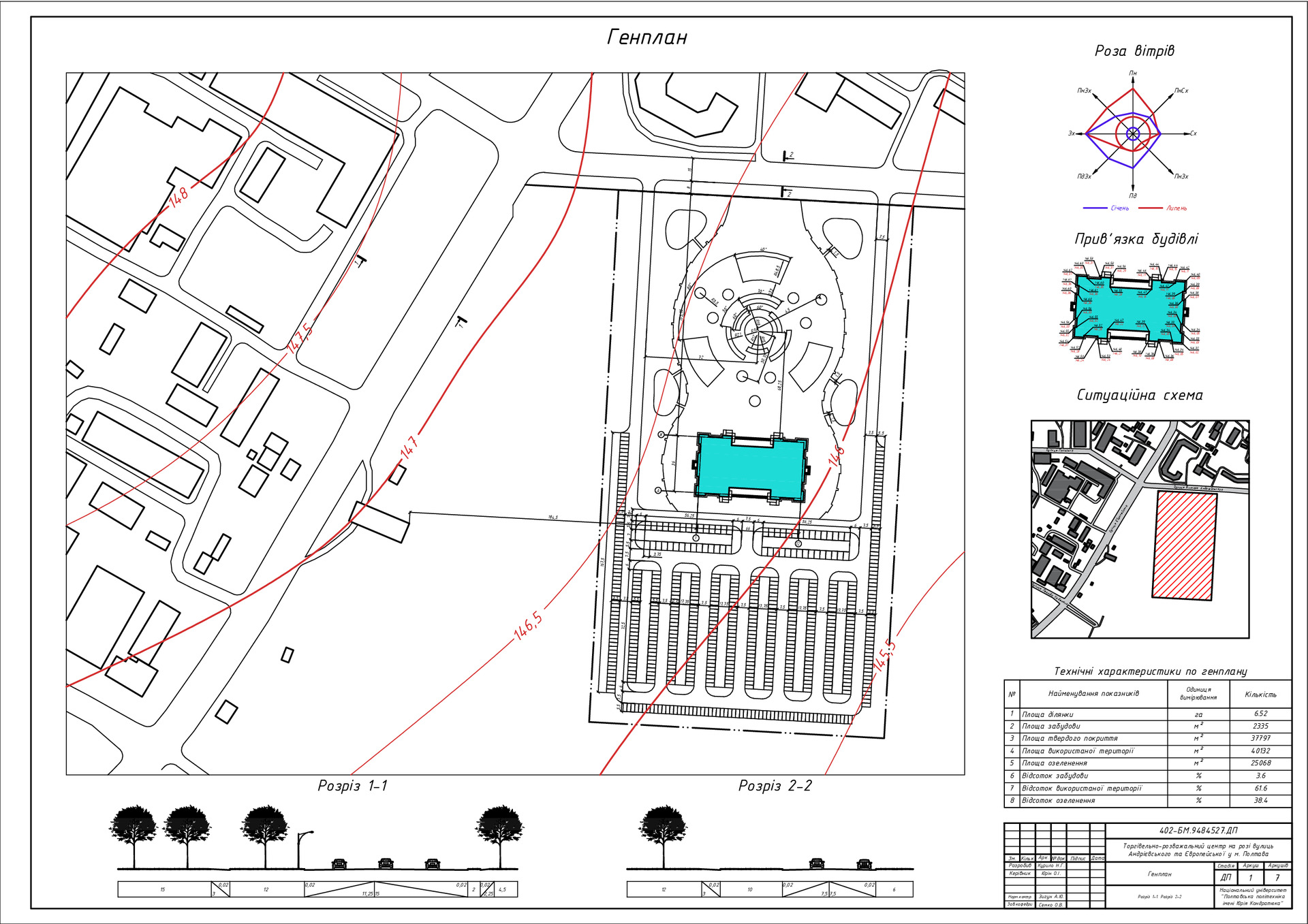
Торгівельно-розважальний центр на розі вулиць Андрієвського та Європейської у м. Полтава
ID елемента: 20553
1 Медіафайлів
2025/12/10
Скопійовано в буфер обміну
