Дипломна робота
Кваліфікаційна робота здобувача вищої освіти
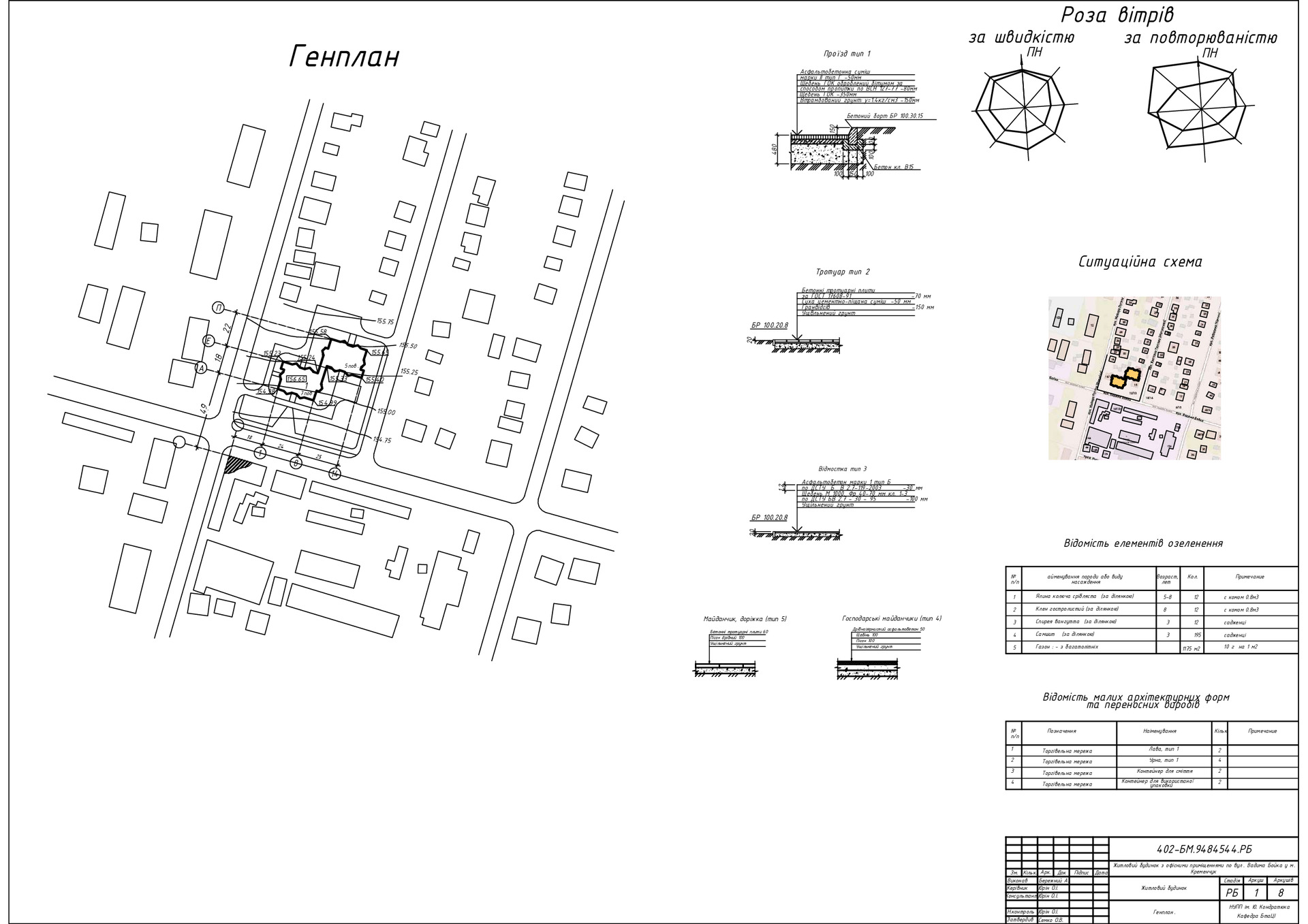
Житловий будинок з офісними приміщеннями по вул. Вадима Бойка у м. Кременчук
ID елемента: 20395
1 Медіафайлів
2025/12/11
Скопійовано в буфер обміну
