Дипломна робота
Кваліфікаційна робота здобувача вищої освіти
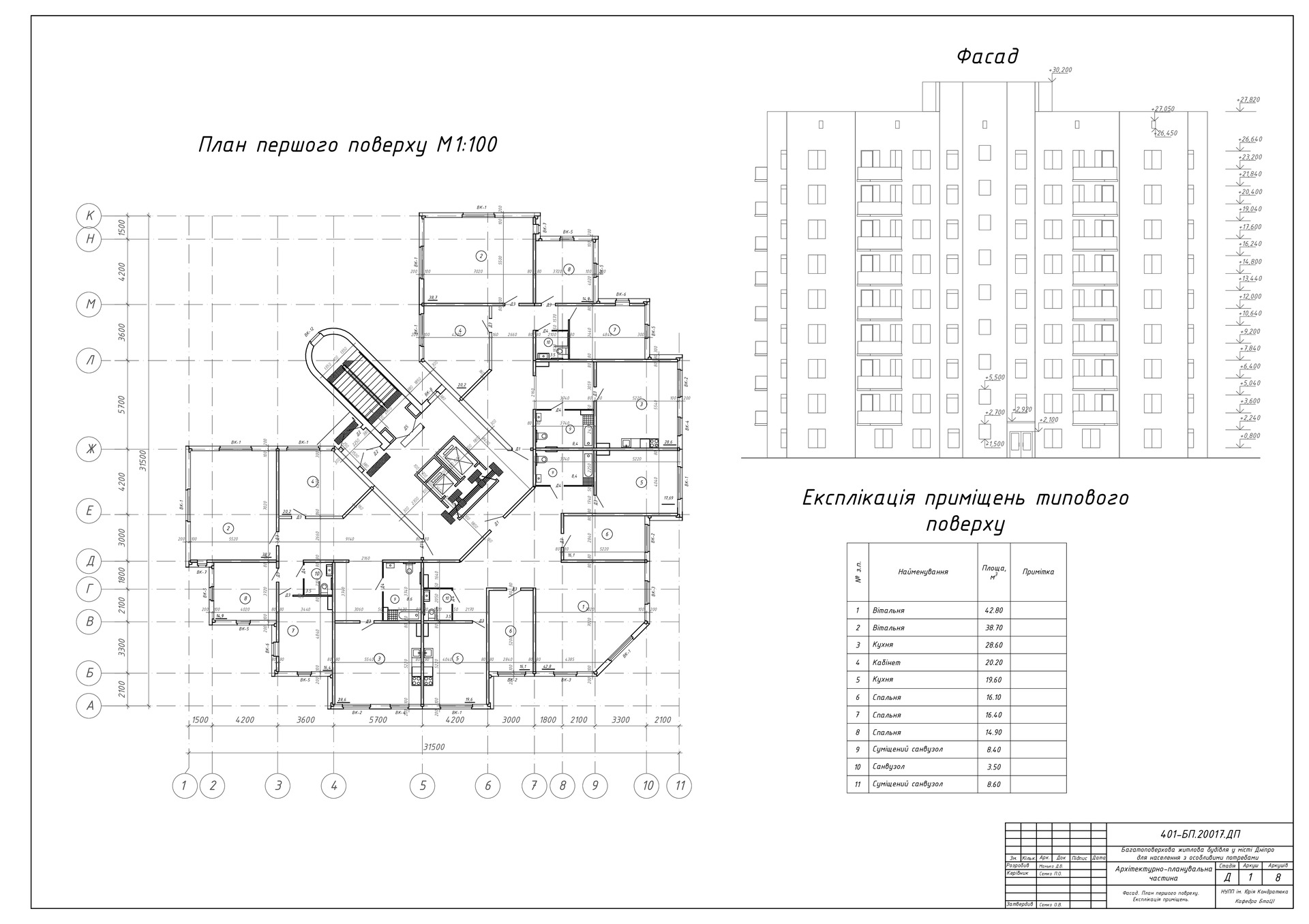
Багатоповерхова житлова будівля у місті Дніпро для населення з особливими потребами
ID елемента: 19664
1 Медіафайлів
2025/12/10
Скопійовано в буфер обміну
