Кваліфікаційні роботи здобувачів вищої освіти (бакалавр) 192 Будівництво та цивільна інженерія

Ознайомтеся з нашою колекцією елементів

24 елементів
Розширений пошук
20. Кишка Іван Євгенович Дипломна робота
Індивідуальний житловий будинок у м. Кременчук

У сучасних умовах гостро стоїть питання проєктування малоповерхових індивідуальних житлових будин...

2025/12/12 1
19. Кривошапка Максим Володимирович Дипломна робота
Багатоповерхова житлова будівля у Житомирській обл.

Метою проєкту є розробка архітектурно- будівельного рішення нового багатоквартирного житлового бу...

2025/12/12 1
18. Калюжний Дмитро Володимирович Дипломна робота
Рекреаційний центр у м. Одеса

Метою проєкту є розробка архітектурно-планувального та конструктивного рішення рекреаційного цен...

2025/12/12 1
17. Петько Ігор Іванович Дипломна робота
Нове будівництво багатоквартирного житлового будинку у м. Миргород Полтавської обл.

Метою проєкту є розробка архітектурно-будівельного рішення нового багатоквартирного житлового буд...

2025/12/12 1
16. Бондар Єгор Андрійович Дипломна робота
Адміністративна будівля санаторію у м. Хмільник Вінницької області

Метою проєкту є розробка архітектурно-конструктивного рішення адміністративної будівлі санаторію ...

2025/12/12 1
15. Карпець Володимир Сергійович Дипломна робота
Тимчасове укриття для пожежного автомобіля на промисловому майданчику

Метою даного проєкту є розробка технічно обґрунтованого та економічно доцільного рішення щодо ст...

2025/12/11 1
14. Донець Вячеслав Андрійович Дипломна робота
Заклад дошкільної освіти місткістю 250 місць

Метою даного бакалаврського проєкту є розробка архітектурно- будівельного рішення закладу дошкіль...

2025/12/11 1
13.  Хутько Сергій Леонідович Дипломна робота
Нове будівництво індивідуального житлового будинку

Проєкт нового індивідуального житлового будинку враховує сучасні тенденції приватної забудови, ад...

2025/12/11 1
12. Божинський Назар Євгенійович Дипломна робота
Реконструкція адміністративної будівлі у м. Івано-Франківськ

Розроблено архітектурно-конструктивне рішення реконструкції адміністративної будівлі в Івано-Фран...

2025/12/11 1
11. Півень Антон Миколайович Дипломна робота
Загальноосвітня школа по вул. Добровольського у м. Кременчук

Основна мета та завдання роботи полягає у комплексному проєктуванні будівлі, що відповідає сучасн...

2025/12/11 1
10. Таран Ігор Андрійович Дипломна робота
Десятиповерховий житловий будинок в м. Гадяч

Бакалаврська дипломна робота на тему: «Десятиповерховий житловий будинок у м. Гадяч» була виконан...

2025/12/11 1
9. Стенько Антон Валентинович Дипломна робота
10-поверховий житловий будинку у м. Ужгород

Проєкт розроблено з урахуванням сучасних вимог до енергоефективності, конструктивної надійності, ...

2025/12/11 1
8. Блєднов Ілля Русланович Дипломна робота
Капітальний ремонт плавального басейну у м. Луцьк

Необхідність проведення капітального ремонту обумовлена зносом конструкцій, інженерних мереж та з...

2025/12/11 1
7. Бережний Андрій Андрійович Дипломна робота
Житловий будинок з офісними приміщеннями по вул. Вадима Бойка у м. Кременчук

У проєкті розроблено комплекту проєктно-конструкторської документації для будівництва житлового б...

2025/12/11 1
6. Солод Олександра Ігорівна Дипломна робота
Малоповерховий житловий будинок у м. Полтава

Проєкт малоповерхового житлового будинку розроблено з урахуванням компактного розміщення на обмеж...

2025/12/11 1
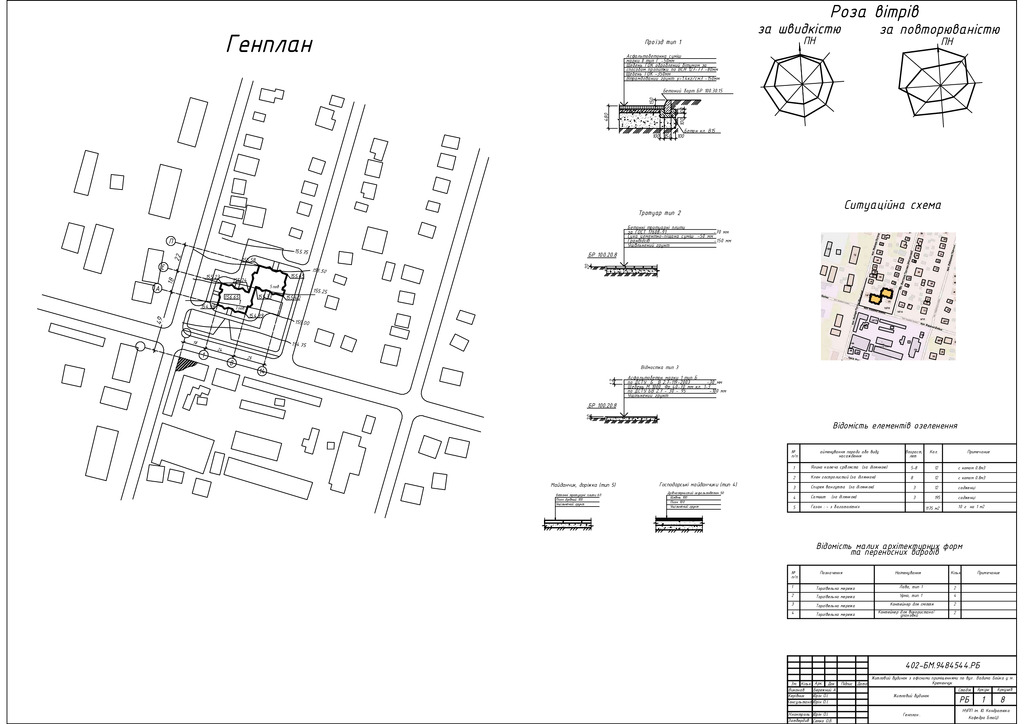
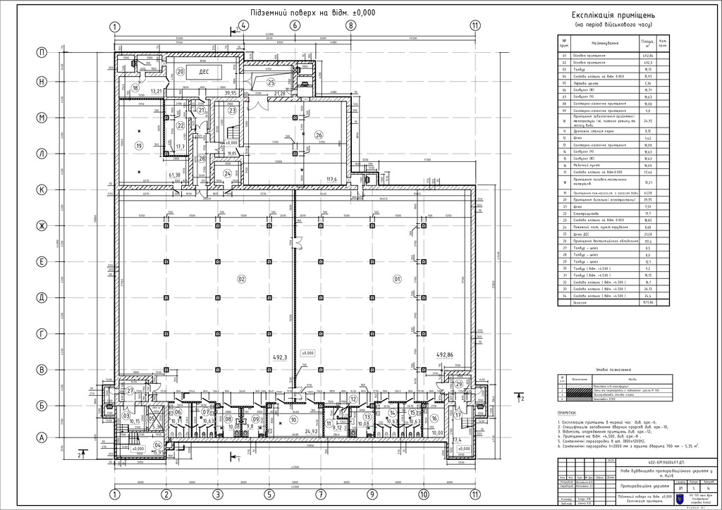
5. Ніколаєнко Дмитро Миколайович Дипломна робота
Нове будівництво протирадіаційного укриття у м. Київ

Основна задача даної кваліфікаційної роботи - запроектувати споруду подвійного призначення, а са...

2025/12/11 1
4. Суптеля Дар`я Сергіївна Дипломна робота
Двоповерховий котеджний будинок

Ціллю проєкту є забезпечення максимально зручних, безпечних та функціональних умов для постійног...

2025/12/11 1
3. Білаш Антоніна Ігорівна Дипломна робота
Нове будівництво захисної споруди цивільного захисту на території навчально-виховного комплексу

Метою роботи є розробка проектних рішень для нового будівництва швидкоспоруджуваної захисної спо...

2025/12/11 1
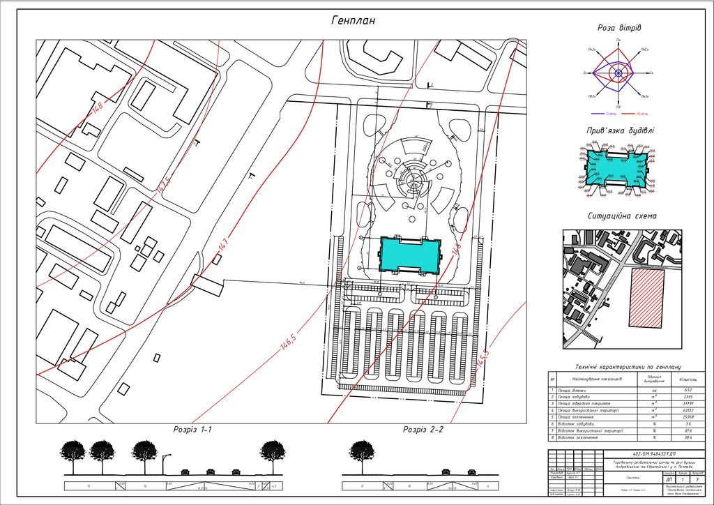
2. Курило Назарій Григорович Дипломна робота
Торгівельно-розважальний центр на розі вулиць Андрієвського та Європейської у м. Полтава

Результатом дипломного проєктування є розробка трьох розділів. Перший розділ включає в себе збір...

2025/12/10 1
1. Токарь Богдан Станіславович Дипломна робота
Реставрація колишнього будинку Земельного банку в м. Полтава

У роботі за проведеним технічним обстеженням будівельних конструкції виявлено задачі з подальшої ...

2025/12/10 1
10. Тарасенко Альона Анатоліївна Дипломна робота
Капітальний ремонт школи в місті Гадяч

Будівля школи в місті Гадяч потребує проведення комплексного капітального ремонту. Це не лише нео...

2025/12/10 1
9. Щур-Дунець Олекса Ігорович Дипломна робота
Багатоповерховий житловий будинок поліпшеного планування в мікрорайоні Лазурний

Розвиток міської інфраструктури та забезпечення населення якісним, доступним і комфортним житлом ...

2025/12/10 1
8. Потапенко Юлія Вікторівна Дипломна робота
Влаштування захисних споруд на виробничих об’єктах

Дипломний проєкт бакалавра присвячено дослідженню та розробці практичних рішень з влаштування зах...

2025/12/10 1
7. Хоменко Олег Олександрович Дипломна робота
Виробнича будівля у Полтавській області

Промислове будівництво є одним із ключових драйверів економічного розвитку будь-якого регіону, зо...

2025/12/10 1
Індивідуальний житловий будинок у м. Кременчук

У сучасних умовах гостро стоїть питання проєктування малоповерхових індивідуальних житлових будинків, здатних забезпечити базові потреби громадян у стабільному середовищі проживання в умовах воєн...

Дипломна робота 2025/12/12
1
Багатоповерхова житлова будівля у Житомирській обл.

Метою проєкту є розробка архітектурно- будівельного рішення нового багатоквартирного житлового будинку у м. Миргород Полтавської області. Проєкт враховує потребу у створенні комфортного та функці...

Дипломна робота 2025/12/12
1
Рекреаційний центр у м. Одеса

Метою проєкту є розробка архітектурно-планувального та конструктивного рішення рекреаційного центру у м. Одеса, що враховуватиме потреби місцевих жителів і відпочивальників, природно-кліматичні т...

Дипломна робота 2025/12/12
1
Нове будівництво багатоквартирного житлового будинку у м. Миргород Полтавської обл.

Метою проєкту є розробка архітектурно-будівельного рішення нового багатоквартирного житлового будинку у м. Миргород Полтавської області. Проєкт враховує потребу у створенні комфортного та функціо...

Дипломна робота 2025/12/12
1
Адміністративна будівля санаторію у м. Хмільник Вінницької області

Метою проєкту є розробка архітектурно-конструктивного рішення адміністративної будівлі санаторію в м. Хмільник, що забезпечить повноцінне управління закладом в умовах мирного часу та за обставин ...

Дипломна робота 2025/12/12
1
Тимчасове укриття для пожежного автомобіля на промисловому майданчику

Метою даного проєкту є розробка технічно обґрунтованого та економічно доцільного рішення щодо створення тимчасового захисного навісу для пожежного автомобіля, який буде забезпечувати ефективне ф...

Дипломна робота 2025/12/11
1
Заклад дошкільної освіти місткістю 250 місць

Метою даного бакалаврського проєкту є розробка архітектурно- будівельного рішення закладу дошкільної освіти на 250 місць, розташованого на території Миргородського району, з урахуванням містобудів...

Дипломна робота 2025/12/11
1
Нове будівництво індивідуального житлового будинку

Проєкт нового індивідуального житлового будинку враховує сучасні тенденції приватної забудови, адаптований до реалій воєнного стану та забезпечує не лише комфортні умови проживання, а й базовий рів...

Дипломна робота 2025/12/11
1
Реконструкція адміністративної будівлі у м. Івано-Франківськ

Розроблено архітектурно-конструктивне рішення реконструкції адміністративної будівлі в Івано-Франківську. Здійснено технічне обстеження існуючої споруди, аналіз її функціонального та технічного ста...

Дипломна робота 2025/12/11
1
Загальноосвітня школа по вул. Добровольського у м. Кременчук

Основна мета та завдання роботи полягає у комплексному проєктуванні будівлі, що відповідає сучасним нормативним вимогам ДБН та забезпечує комфортне, безпечне та енергоефективне освітнє середовище. ...

Дипломна робота 2025/12/11
1
Десятиповерховий житловий будинок в м. Гадяч

Бакалаврська дипломна робота на тему: «Десятиповерховий житловий будинок у м. Гадяч» була виконана з урахуванням актуальних умов сьогодення, зумовлених воєнним станом в Україні. У зв’язку з цим, ос...

Дипломна робота 2025/12/11
1
10-поверховий житловий будинку у м. Ужгород

Проєкт розроблено з урахуванням сучасних вимог до енергоефективності, конструктивної надійності, функціональності та архітектурної виразності. В основу проєкту покладено принцип забезпечення довгов...

Дипломна робота 2025/12/11
1
Капітальний ремонт плавального басейну у м. Луцьк

Необхідність проведення капітального ремонту обумовлена зносом конструкцій, інженерних мереж та застарілістю технологічного обладнання, що знижує безпеку, енергоефективність та комфорт експлуатації...

Дипломна робота 2025/12/11
1
Житловий будинок з офісними приміщеннями по вул. Вадима Бойка у м. Кременчук

У проєкті розроблено комплекту проєктно-конструкторської документації для будівництва житлового будинку з офісними приміщеннями, що відповідає сучасним вимогам надійності, енергоефективності, функц...

Дипломна робота 2025/12/11
1
Малоповерховий житловий будинок у м. Полтава

Проєкт малоповерхового житлового будинку розроблено з урахуванням компактного розміщення на обмеженій території. Будинок складається з двох поверхів та розташований місті Полтава. На території вико...

Дипломна робота 2025/12/11
1
Нове будівництво протирадіаційного укриття у м. Київ

Основна задача даної кваліфікаційної роботи - запроектувати споруду подвійного призначення, а саме протирадіаційне укриття у м. Київ, використовуючи діючу нормативну документацію та інші вимоги д...

Дипломна робота 2025/12/11
1
Двоповерховий котеджний будинок

Ціллю проєкту є забезпечення максимально зручних, безпечних та функціональних умов для постійного проживання та відпочинку мешканців, із дотриманням усіх діючих будівельних норм, державних станда...

Дипломна робота 2025/12/11
1
Нове будівництво захисної споруди цивільного захисту на території навчально-виховного комплексу

Метою роботи є розробка проектних рішень для нового будівництва швидкоспоруджуваної захисної споруди цивільного захисту (подвійного призначення – протирадіаційного укриття) на території навчально...

Дипломна робота 2025/12/11
1
Торгівельно-розважальний центр на розі вулиць Андрієвського та Європейської у м. Полтава

Результатом дипломного проєктування є розробка трьох розділів. Перший розділ включає в себе збір інформації про умови будівництва, загальний аналіз інфраструктури транспорту, озеленення територій...

Дипломна робота 2025/12/10
1
Реставрація колишнього будинку Земельного банку в м. Полтава

У роботі за проведеним технічним обстеженням будівельних конструкції виявлено задачі з подальшої реставрації будівлі. Розкрито теми підвищення доступності навчального закладу для маломобільних груп...

Дипломна робота 2025/12/10
1
Капітальний ремонт школи в місті Гадяч

Будівля школи в місті Гадяч потребує проведення комплексного капітального ремонту. Це не лише необхідність відновлення функціональності, але й важливий крок до енергетичної модернізації та підвищен...

Дипломна робота 2025/12/10
1
Багатоповерховий житловий будинок поліпшеного планування в мікрорайоні Лазурний

Розвиток міської інфраструктури та забезпечення населення якісним, доступним і комфортним житлом є одним із пріоритетних завдань сучасного містобудування та будівельної галузі. У великих містах поп...

Дипломна робота 2025/12/10
1
Влаштування захисних споруд на виробничих об’єктах

Дипломний проєкт бакалавра присвячено дослідженню та розробці практичних рішень з влаштування захисних споруд цивільного захисту на території виробничих об'єктів. Актуальність захисні спорудитеми з...

Дипломна робота 2025/12/10
1
Виробнича будівля у Полтавській області

Промислове будівництво є одним із ключових драйверів економічного розвитку будь-якого регіону, зокрема й Полтавської області. Зростання попиту на логістичні центри, виробничі цехи та склади вимагає...

Дипломна робота 2025/12/10
1