Кваліфікаційні роботи здобувачів вищої освіти (бакалавр) 192 Будівництво та цивільна інженерія

Ознайомтеся з нашою колекцією елементів

24 елементів
Розширений пошук
6. Крамор Олександр Сергійович Дипломна робота
Дев’ятиповерховий 90 кв. житловий будинок в м. Горішні Плавні по вул. Добровольського

Актуальність обраної теми зумовлена необхідністю забезпечення населення якісним житлом, впровадже...

2025/12/10 1
1. Манько Денис Володимирович Дипломна робота
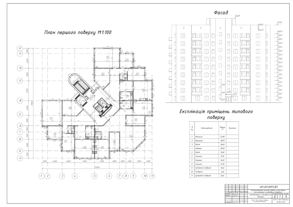
Багатоповерхова житлова будівля у місті Дніпро для населення з особливими потребами

Дипломна робота присвячена розробці архітектурно-конструктивного та інженерного рішення багатопов...

2025/12/10 1
2. Шуніна Анастасія Миколаївна Дипломна робота
Дев’ятиповерхова житлова будівля у місті Хмельницький

Дипломна робота полягає у комплексному проєктуванні будівлі, що відповідає сучасним будівельним н...

2025/12/10 1
3. Ігнатенко Ірина Володимирівна Дипломна робота
Восьмиповерховий житловий будинок з комерційними приміщеннями на першому поверсі

Дипломна робота присвячена розробці проєкту восьмиповерхового житлового будинку з вбудованими ком...

2025/12/10 1
4. Ракович Владислав Анатолійович Дипломна робота
Нове будівництво готелю у Київській області

Дана бакалаврська дипломна робота присвячена розробці проєкту нового будівництва готельного компл...

2025/12/10 1
5. Коломієць Артем Володимирович Дипломна робота
Будівництво спортивного комплексу в смт. Чорнухи Полтавської області

Дипломна робота присвячена розробці проєкту спортивного комплексу в смт. Чорнухи, що є актуальним...

2025/12/10 1
2021 301пБА Штанько В.А. Дипломна робота
Проект будівництва автомобільної дороги ІІ категорії в Бориспільському районі Київської області

У роботі наведено аналіз існуючої дорожньо-транспортної мережі району проектування, розглянуто за...

2024/06/27 1
2021 301пБА Чуб Д.С. Дипломна робота
Проект будівництва автомобільної дороги ІІІ категорії в Лозівському районі Харківської області

У роботі наведено аналіз існуючої дорожньо-транспортної мережі району проектування, розглянуто за...

2024/06/27 1
2021 301пБА Філонич О.О. Дипломна робота
Проект будівництва автомобільної дороги ІІ категорії в Уманському районі Черкаської області

У роботі наведено аналіз існуючої дорожньо-транспортної мережі району проектування, розглянуто за...

2024/06/27 1
2021 301пБА Тимоха М.С. Дипломна робота
Проект будівництва автомобільної дороги ІІІ категорії в Мелітопольському районі Запорізької області

Роботу присвячено проектуванню автомобільної дороги загального користування з розробленням штучно...

2024/06/27 1
2021 301пБА Романченко В.І. Дипломна робота
Проект будівництва автомобільної дороги ІІ категорії в Охтирському районі Сумської області

У роботі наведено аналіз існуючої дорожньо-транспортної мережі району проектування, розглянуто за...

2024/06/27 1
2021 301пБА Погребняк І.С. Дипломна робота
Проект будівництва автомобільної дороги ІІІ категорії в Яворівському районі Львівської області

У роботі наведено аналіз існуючої дорожньо-транспортної мережі району проектування, розглянуто за...

2024/06/27 1
2021 301пБА Мусієнко О.В. Дипломна робота
Проект будівництва автомобільної дороги ІІ категорії в Старобільському районі Луганської області

У роботі наведено аналіз існуючої дорожньо-транспортної мережі району проектування, розглянуто за...

2024/06/27 1
2021 301пБА Лисенко О.С. Дипломна робота
Проект будівництва автомобільної дороги ІІІ категорії в Краматорському районі Донецької області

У роботі наведено аналіз існуючої дорожньо-транспортної мережі району проектування, розглянуто за...

2024/06/27 1
2021 301пБА Копиця Ю.Р. Дипломна робота
Проект будівництва автомобільної дороги ІІ категорії в Нікопольському районі Дніпропетровської області

У роботі наведено аналіз існуючої дорожньо-транспортної мережі району проектування, розглянуто за...

2024/06/27 1
2021 301пБА Каліна С.М. Дипломна робота
Проект будівництва автомобільної дороги ІІІ категорії в Лубенському районі Полтавської області

У роботі наведено аналіз існуючої дорожньо-транспортної мережі району проектування, розглянуто за...

2024/06/27 1
2021 301пБА Дядюра С.М. Дипломна робота
Проект будівництва автомобільної дороги ІІ категорії в Гайсинському районі Вінницької області

У роботі наведено аналіз існуючої дорожньо-транспортної мережі району проектування, розглянуто за...

2024/06/27 1
2021 301пБА Гвоздик В.В. Дипломна робота
Проект будівництва автомобільної дороги ІІІ категорії в Олександрійському районі Кіровоградської області

У роботі наведено аналіз існуючої дорожньо-транспортної мережі району проектування, розглянуто за...

2024/06/27 1
14. Шершерія Г.В. Дипломна робота
Нове будівництво індивідуального житлового будинку по вул. Дружби у м. Кременчук

Нове будівництво індивідуального житлового будинку по вул. Дружби, Кременчуцького району, Полтавс...

2024/02/02 1
13. Яровий В.Г. Дипломна робота
Дитячий ясла-садок у смт. Диканька Полтавської області

Будівля запроектована складної форми в плані, що представляє собою чотири прямокутних блоки, розд...

2024/02/02 1
12. Марченко Р.А. Дипломна робота
Офісний центр у м. Полтава

Офісний центр в місті Полтава по вул. Котляревського 22-б запроектований в складі об’єктів реконс...

2024/02/02 1
11.  Хіміч Е.С. Дипломна робота
Будівництво двоповерхового одноквартирного житлового будинку у м. Тернопіль

Запроектований двоповерховий індивідуальний житловий будинок, з висотою поверхів (від підлоги пер...

2024/02/02 1
10. Сіровський В.В. Дипломна робота
Житловий будинок з благоустроєм території у м. Київ

Проектом передбачено односекційний 17-ти поверховий житловий будинок з паркінгом в цокольному пов...

2024/02/02 1
9. Привар Р.М. Дипломна робота
Двоповерховий котедж з активними елементами у м. Одеса

Для проектуємого котеджного будинку прийнятий майданчик в місті Одеса. До котеджної ділянки перед...

2024/02/02 1
Дев’ятиповерховий 90 кв. житловий будинок в м. Горішні Плавні по вул. Добровольського

Актуальність обраної теми зумовлена необхідністю забезпечення населення якісним житлом, впровадженням енергоощадних технологій і оптимізацією будівельних процесів для зниження собівартості та термі...

Дипломна робота 2025/12/10
1
Багатоповерхова житлова будівля у місті Дніпро для населення з особливими потребами

Дипломна робота присвячена розробці архітектурно-конструктивного та інженерного рішення багатоповерхової житлової будівлі в місті Дніпро, що відповідає сучасним вимогам інклюзивності, енергоефектив...

Дипломна робота 2025/12/10
1
Дев’ятиповерхова житлова будівля у місті Хмельницький

Дипломна робота полягає у комплексному проєктуванні будівлі, що відповідає сучасним будівельним нормам, вимогам енергоефективності, функціональності та архітектурній виразності, з урахуванням місце...

Дипломна робота 2025/12/10
1
Восьмиповерховий житловий будинок з комерційними приміщеннями на першому поверсі

Дипломна робота присвячена розробці проєкту восьмиповерхового житлового будинку з вбудованими комерційними приміщеннями на першому поверсі, що відповідає сучасним вимогам до житлового будівництва т...

Дипломна робота 2025/12/10
1
Нове будівництво готелю у Київській області

Дана бакалаврська дипломна робота присвячена розробці проєкту нового будівництва готельного комплексу на території Київської області. Основною метою роботи є обґрунтування техніко-економічної доціл...

Дипломна робота 2025/12/10
1
Будівництво спортивного комплексу в смт. Чорнухи Полтавської області

Дипломна робота присвячена розробці проєкту спортивного комплексу в смт. Чорнухи, що є актуальним для задоволення потреб населення у заняттях спортом, оздоровленні та організації дозвілля.

Дипломна робота 2025/12/10
1
Проект будівництва автомобільної дороги ІІ категорії в Бориспільському районі Київської області

У роботі наведено аналіз існуючої дорожньо-транспортної мережі району проектування, розглянуто загальні положення щодо проектування автомобільних доріг загального користування, обґрунтовано вибір о...

Дипломна робота 2024/06/27
1
Проект будівництва автомобільної дороги ІІІ категорії в Лозівському районі Харківської області

У роботі наведено аналіз існуючої дорожньо-транспортної мережі району проектування, розглянуто загальні положення щодо проектування автомобільних доріг загального користування, обґрунтовано вибір о...

Дипломна робота 2024/06/27
1
Проект будівництва автомобільної дороги ІІ категорії в Уманському районі Черкаської області

У роботі наведено аналіз існуючої дорожньо-транспортної мережі району проектування, розглянуто загальні положення щодо проектування автомобільних доріг загального користування, обґрунтовано вибір о...

Дипломна робота 2024/06/27
1
Проект будівництва автомобільної дороги ІІІ категорії в Мелітопольському районі Запорізької області

Роботу присвячено проектуванню автомобільної дороги загального користування з розробленням штучної водоперепускної споруди. наведено аналіз існуючої дорожньо-транспортної мережі району проектування...

Дипломна робота 2024/06/27
1
Проект будівництва автомобільної дороги ІІ категорії в Охтирському районі Сумської області

У роботі наведено аналіз існуючої дорожньо-транспортної мережі району проектування, розглянуто загальні положення щодо проектування автомобільних доріг загального користування, обґрунтовано вибір о...

Дипломна робота 2024/06/27
1
Проект будівництва автомобільної дороги ІІІ категорії в Яворівському районі Львівської області

У роботі наведено аналіз існуючої дорожньо-транспортної мережі району проектування, розглянуто загальні положення щодо проектування автомобільних доріг загального користування, обґрунтовано вибір о...

Дипломна робота 2024/06/27
1
Проект будівництва автомобільної дороги ІІ категорії в Старобільському районі Луганської області

У роботі наведено аналіз існуючої дорожньо-транспортної мережі району проектування, розглянуто загальні положення щодо проектування автомобільних доріг загального користування, обґрунтовано вибір о...

Дипломна робота 2024/06/27
1
Проект будівництва автомобільної дороги ІІІ категорії в Краматорському районі Донецької області

У роботі наведено аналіз існуючої дорожньо-транспортної мережі району проектування, розглянуто загальні положення щодо проектування автомобільних доріг загального користування, обґрунтовано вибір о...

Дипломна робота 2024/06/27
1
Проект будівництва автомобільної дороги ІІ категорії в Нікопольському районі Дніпропетровської області

У роботі наведено аналіз існуючої дорожньо-транспортної мережі району проектування, розглянуто загальні положення щодо проектування автомобільних доріг загального користування, обґрунтовано вибір о...

Дипломна робота 2024/06/27
1
Проект будівництва автомобільної дороги ІІІ категорії в Лубенському районі Полтавської області

У роботі наведено аналіз існуючої дорожньо-транспортної мережі району проектування, розглянуто загальні положення щодо проектування автомобільних доріг загального користування, обґрунтовано вибір о...

Дипломна робота 2024/06/27
1
Проект будівництва автомобільної дороги ІІ категорії в Гайсинському районі Вінницької області

У роботі наведено аналіз існуючої дорожньо-транспортної мережі району проектування, розглянуто загальні положення щодо проектування автомобільних доріг загального користування, обґрунтовано вибір о...

Дипломна робота 2024/06/27
1
Проект будівництва автомобільної дороги ІІІ категорії в Олександрійському районі Кіровоградської області

У роботі наведено аналіз існуючої дорожньо-транспортної мережі району проектування, розглянуто загальні положення щодо проектування автомобільних доріг загального користування, обґрунтовано вибір о...

Дипломна робота 2024/06/27
1
Нове будівництво індивідуального житлового будинку по вул. Дружби у м. Кременчук

Нове будівництво індивідуального житлового будинку по вул. Дружби, Кременчуцького району, Полтавської області. Житловий будинок презентує собою композицію в прямокутній формі, що складається з архі...

Дипломна робота 2024/02/02
1
Дитячий ясла-садок у смт. Диканька Полтавської області

Будівля запроектована складної форми в плані, що представляє собою чотири прямокутних блоки, розділених між собою деформаційними швами. Кожен блок має два поверхи. Покрівля шатрова.

Дипломна робота 2024/02/02
1
Офісний центр у м. Полтава

Офісний центр в місті Полтава по вул. Котляревського 22-б запроектований в складі об’єктів реконструкції кварталу вулиць: Небесної Сотні, Котляревського, 1100-річчя Полтави. Ділянка знаходиться в р...

Дипломна робота 2024/02/02
1
Будівництво двоповерхового одноквартирного житлового будинку у м. Тернопіль

Запроектований двоповерховий індивідуальний житловий будинок, з висотою поверхів (від підлоги першого поверху до підлоги другого поверху) - 3 м, та висотою приміщення (від підлоги до стелі) – 2.7 м...

Дипломна робота 2024/02/02
1
Житловий будинок з благоустроєм території у м. Київ

Проектом передбачено односекційний 17-ти поверховий житловий будинок з паркінгом в цокольному поверсі. На першому поверсі розташовані приміщення для обслуговуючого персоналу, третьому, четвертому т...

Дипломна робота 2024/02/02
1
Двоповерховий котедж з активними елементами у м. Одеса

Для проектуємого котеджного будинку прийнятий майданчик в місті Одеса. До котеджної ділянки передбачені проїзди та тротуари з асфальтним покриттям або вимощеною бруківкою. Більша частина вікон віта...

Дипломна робота 2024/02/02
1