Дипломна робота
Кваліфікаційна робота здобувача вищої освіти
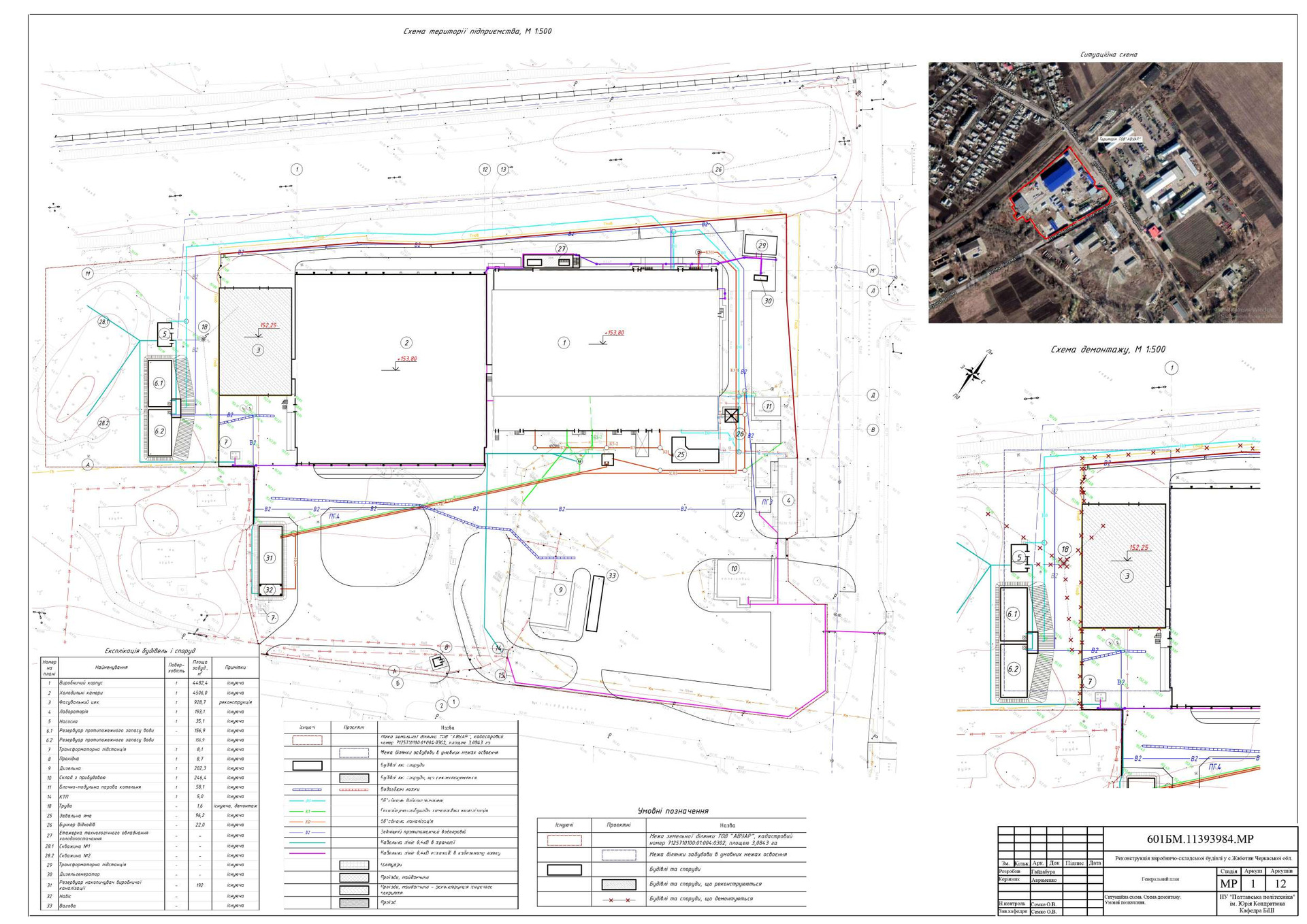
Реконструкція виробничо-складської будівлі у с. Жаботин Черкаської обл.
ID елемента: 651
1 Медіафайлів
2025/12/12
Скопійовано в буфер обміну
