192 Будівництво та цивільна інженерія

Ознайомтеся з нашою колекцією елементів

203 елементів
Розширений пошук
22. Терещенко Олександр Іванович Дипломна робота
Аналіз архітектурних і планувальних рішень при будівництві 10 поверхового житлового будинку в м. Хмельницький

У роботі розглянуто основні вимоги до проєктування енергоефективного, комфортного та функціональн...

2025/12/12 1
21. Підлісний Артем Олександрович Дипломна робота
Дослідження рівня шуму на території житлового комплексу “Дніпровська Рів’єра” м. Кременчук

Дослідження зумовлено необхідністю забезпечення комфортних та безпечних умов проживання в міськом...

2025/12/12 1
19.  Литвиненко Ярослав Олексійович Дипломна робота
Капітальний ремонт частини приміщень Тахтаулівського НВК в с. Тахтаулове Полтавського району, Полтавської області

Мета роботи – розробка заходів з відновлення несучих конструкцій будівлі за аналізом дослідження...

2025/12/12 1
18. Кабаченко Ірина Григорівна Дипломна робота
Нове будівництво багатофункціонального комплексу у м. Полтава

Метою роботи є розробка проектних рішень багатофункціонального комплексу з урахуванням підвищенн...

2025/12/12 1
17.  Сімакін Олександр Олександрович Дипломна робота
Реконструкція навчального корпусу університету з урахуванням вимог цивільного захисту, інклюзивності та енергоефективності

Мета роботи – розробка проектних рішень з відновлення експлуатаційних параметрів конструкцій буд...

2025/12/12 1
16. Удовицький Олег Сергійович Дипломна робота
15. Хіміч Ернест Сергійович Дипломна робота
Реставрація адміністративної будівлі за адресою м. Полтава, пр. Віталія Грицаєнка, 13

Метою роботи є розробка архітектурно-будівельних рішень відновлення експлуатаційних характеристи...

2025/12/12 1
14. Литовченко Максим Вікторович Дипломна робота
Капітальний ремонт нежитлової будівлі та її адаптація до вимог маломобільних груп населення у м. Київ

Робота присвячена актуальній проблемі комплексного відновлення та модернізації існуючого нежитлов...

2025/12/12 1
13. Лепський Олександр Валерійович Дипломна робота
Капітальний ремонт виробничого будинку (котельня) ГУ ДСНС України у Полтавській обл.

Робота присвячена розробці проєкту капітального ремонту виробничого будинку, а саме котельні, що ...

2025/12/12 1
12. Куліш Арсеній Віталійович Дипломна робота
Проектування закладу дошкільної освіти у м. Ужгород з укриттям

Проектування закладу дошкільної освіти у м. Ужгород з укриттям – це нагальна потреба сьогодення, ...

2025/12/12 1
11. Клемешов Олександр Олександрович Дипломна робота
Облаштування постів електромобільних зарядних пристроїв в селищі Семенівка Полтавської обл.

Актуальність роботи полягає у розробці комплексного інженерного рішення для інтеграції зарядних с...

2025/12/12 1
10. Горобець Дмитро Ігорович Дипломна робота
Реконструкція житлового будинку, пошкодженого під час обстрілів

Робота спрямована на виявлення особливостей формування реконструкції житлової забудови, обґрунтув...

2025/12/12 1
9. Гайдабура Олексій Миколайович Дипломна робота
Реконструкція виробничо-складської будівлі у с. Жаботин Черкаської обл.

Реконструкція виробничо-складської будівлі у с. Жаботин Черкаської обл. є частиною програми відно...

2025/12/12 1
8. Богомаз Андрій Олександрович Дипломна робота
Аналіз проектних рішень будівель лікувально-профілактичних закладів

Актуальність роботи зумовлена постійно зростаючою потребою суспільства у модернізації та будівниц...

2025/12/12 1
7. Басай Максим Миколайович Дипломна робота
Нове будівництво цеху по виробництву бетонних виробів

Робота присвячена обґрунтуванню, проектуванню та розробці комплексу рішень для нового будівництва...

2025/12/12 1
6. Сіровський Владислав Володимирович Дипломна робота
Реконструкція бойлерної під влаштування котельні у м. Бориспіль Київської обл.

Робота полягає у необхідності модернізації застарілих об'єктів теплопостачання, підвищенні їхньої...

2025/12/12 1
5. Нікітенко Іван Юрійович Дипломна робота
Термомодернізація житлових будинків серії 111-94

Актуальність дипломної роботи зумовлена необхідністю підвищення енергоефективності житлового фонд...

2025/12/12 1
4. Колісніченко Катерина Вікторівна Дипломна робота
Дослідження вологісного стану огороджувальних конструкцій тимчасових приміщень

Вологісний режим є одним із ключових факторів, що впливають на теплотехнічні властивості, механіч...

2025/12/12 1
3. Бойчук Євгеній Анатолійович Дипломна робота
Дослідження інсоляції квартир житлового будинку по вул. Героїв України 6-а у м. Полтава

Дослідження зумовлене значним впливом інсоляції (прямого сонячного опромінення) на мікроклімат, е...

2025/12/12 1
2. Анпілогов Роман Андрійович Дипломна робота
Дослідження рівня шуму на території житлового комплексу «Затишний» у м. Полтава

Робота присвячена дослідженню та оцінці рівня акустичного забруднення на території житлового комп...

2025/12/12 1
1. Аверьянов Ілля Володимирович Дипломна робота
Дослідження теплозахисних властивостей ділянок зовнішніх стін з теплопровідними включеннями

Дослідження полягає у необхідності підвищення енергоефективності будівель та забезпечення комфорт...

2025/12/12 1
20. Кишка Іван Євгенович Дипломна робота
Індивідуальний житловий будинок у м. Кременчук

У сучасних умовах гостро стоїть питання проєктування малоповерхових індивідуальних житлових будин...

2025/12/12 1
19. Кривошапка Максим Володимирович Дипломна робота
Багатоповерхова житлова будівля у Житомирській обл.

Метою проєкту є розробка архітектурно- будівельного рішення нового багатоквартирного житлового бу...

2025/12/12 1
18. Калюжний Дмитро Володимирович Дипломна робота
Рекреаційний центр у м. Одеса

Метою проєкту є розробка архітектурно-планувального та конструктивного рішення рекреаційного цен...

2025/12/12 1
Аналіз архітектурних і планувальних рішень при будівництві 10 поверхового житлового будинку в м. Хмельницький

У роботі розглянуто основні вимоги до проєктування енергоефективного, комфортного та функціонального житла. Проведено аналіз інженерно-геологічних умов ділянки та розроблено відповідні конструктивн...

Дипломна робота 2025/12/12
1
Дослідження рівня шуму на території житлового комплексу “Дніпровська Рів’єра” м. Кременчук

Дослідження зумовлено необхідністю забезпечення комфортних та безпечних умов проживання в міському середовищі, де шумове забруднення є однією з ключових екологічних проблем. Житловий комплекс “Дніп...

Дипломна робота 2025/12/12
1
Капітальний ремонт частини приміщень Тахтаулівського НВК в с. Тахтаулове Полтавського району, Полтавської області

Мета роботи – розробка заходів з відновлення несучих конструкцій будівлі за аналізом дослідження їх тепловологісного режиму.

Дипломна робота 2025/12/12
1
Нове будівництво багатофункціонального комплексу у м. Полтава

Метою роботи є розробка проектних рішень багатофункціонального комплексу з урахуванням підвищення комфортності, функціональності, дотримання вимог пожежної безпеки, енергоефективності та інклюзив...

Дипломна робота 2025/12/12
1
Реконструкція навчального корпусу університету з урахуванням вимог цивільного захисту, інклюзивності та енергоефективності

Мета роботи – розробка проектних рішень з відновлення експлуатаційних параметрів конструкцій будівлі за результатом технічного обстеження. Проект передбачає роботи по термомодернізації, влаштува...

Дипломна робота 2025/12/12
1
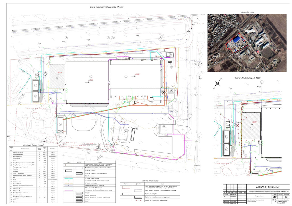
Капітальний ремонт гуртожитку Національного університету імені Юрія Кондратюка з влаштуванням приміщень подвійного призначення за адресою пр. Першотравневий, 25, м. Полтава

Актуальність роботи полягає у розробці заходів з ремонту і термомодернізації історичної будівлі із максимальним збереженням геометричних параметрів та зовнішнього вигляду, а також розробці заході...

Дипломна робота 2025/12/12
1
Реставрація адміністративної будівлі за адресою м. Полтава, пр. Віталія Грицаєнка, 13

Метою роботи є розробка архітектурно-будівельних рішень відновлення експлуатаційних характеристик зовнішніх огороджувальних конструкцій при дотриманні збереження історичного вигляду об’єкта культ...

Дипломна робота 2025/12/12
1
Капітальний ремонт нежитлової будівлі та її адаптація до вимог маломобільних груп населення у м. Київ

Робота присвячена актуальній проблемі комплексного відновлення та модернізації існуючого нежитлового фонду міста Києва з обов'язковим забезпеченням доступності для маломобільних груп населення (МГН...

Дипломна робота 2025/12/12
1
Капітальний ремонт виробничого будинку (котельня) ГУ ДСНС України у Полтавській обл.

Робота присвячена розробці проєкту капітального ремонту виробничого будинку, а саме котельні, що знаходиться на балансі Головного управління Державної служби України з надзвичайних ситуацій (ГУ ДСН...

Дипломна робота 2025/12/12
1
Проектування закладу дошкільної освіти у м. Ужгород з укриттям

Проектування закладу дошкільної освіти у м. Ужгород з укриттям – це нагальна потреба сьогодення, що відображає турботу про безпеку та добробут дітей. Наявність укриття дозволяє закладу дошкільної о...

Дипломна робота 2025/12/12
1
Облаштування постів електромобільних зарядних пристроїв в селищі Семенівка Полтавської обл.

Актуальність роботи полягає у розробці комплексного інженерного рішення для інтеграції зарядних станцій у наявну міську інфраструктуру, враховуючи особливості забудови та енергомережі селища.

Дипломна робота 2025/12/12
1
Реконструкція житлового будинку, пошкодженого під час обстрілів

Робота спрямована на виявлення особливостей формування реконструкції житлової забудови, обґрунтування методичних підходів, методики містобудівного проектування та формування інформаційної моделі не...

Дипломна робота 2025/12/12
1
Реконструкція виробничо-складської будівлі у с. Жаботин Черкаської обл.

Реконструкція виробничо-складської будівлі у с. Жаботин Черкаської обл. є частиною програми відновлення промислового потенціалу Черкащини. У процесі роботи були враховані сучасні потреби бізнесу, і...

Дипломна робота 2025/12/12
1
Аналіз проектних рішень будівель лікувально-профілактичних закладів

Актуальність роботи зумовлена постійно зростаючою потребою суспільства у модернізації та будівництві нових лікувально-профілактичних закладів, які б відповідали сучасним медичним, технологічним та ...

Дипломна робота 2025/12/12
1
Нове будівництво цеху по виробництву бетонних виробів

Робота присвячена обґрунтуванню, проектуванню та розробці комплексу рішень для нового будівництва цеху з виробництва бетонних виробів. Актуальність теми зумовлена постійним зростанням попиту на вис...

Дипломна робота 2025/12/12
1
Реконструкція бойлерної під влаштування котельні у м. Бориспіль Київської обл.

Робота полягає у необхідності модернізації застарілих об'єктів теплопостачання, підвищенні їхньої енергоефективності та забезпеченні надійного й економічного постачання тепла споживачам міста Борис...

Дипломна робота 2025/12/12
1
Термомодернізація житлових будинків серії 111-94

Актуальність дипломної роботи зумовлена необхідністю підвищення енергоефективності житлового фонду України, зокрема будинків масових серій забудови, до яких належать будинки серії 111-94. Ці будівл...

Дипломна робота 2025/12/12
1
Дослідження вологісного стану огороджувальних конструкцій тимчасових приміщень

Вологісний режим є одним із ключових факторів, що впливають на теплотехнічні властивості, механічну міцність, а також на формування сприятливого мікроклімату всередині таких будівель. Неналежний во...

Дипломна робота 2025/12/12
1
Дослідження інсоляції квартир житлового будинку по вул. Героїв України 6-а у м. Полтава

Дослідження зумовлене значним впливом інсоляції (прямого сонячного опромінення) на мікроклімат, енергоефективність та, що найголовніше, на санітарно-гігієнічні умови проживання, сприяючи знезаражен...

Дипломна робота 2025/12/12
1
Дослідження рівня шуму на території житлового комплексу «Затишний» у м. Полтава

Робота присвячена дослідженню та оцінці рівня акустичного забруднення на території житлового комплексу «Затишний» у місті Полтава. Актуальність роботи обумовлена необхідністю забезпечення комфортни...

Дипломна робота 2025/12/12
1
Дослідження теплозахисних властивостей ділянок зовнішніх стін з теплопровідними включеннями

Дослідження полягає у необхідності підвищення енергоефективності будівель та забезпечення комфортного мікроклімату при мінімізації експлуатаційних витрат на опалення. В зовнішніх стінах будівель ча...

Дипломна робота 2025/12/12
1
Індивідуальний житловий будинок у м. Кременчук

У сучасних умовах гостро стоїть питання проєктування малоповерхових індивідуальних житлових будинків, здатних забезпечити базові потреби громадян у стабільному середовищі проживання в умовах воєн...

Дипломна робота 2025/12/12
1
Багатоповерхова житлова будівля у Житомирській обл.

Метою проєкту є розробка архітектурно- будівельного рішення нового багатоквартирного житлового будинку у м. Миргород Полтавської області. Проєкт враховує потребу у створенні комфортного та функці...

Дипломна робота 2025/12/12
1
Рекреаційний центр у м. Одеса

Метою проєкту є розробка архітектурно-планувального та конструктивного рішення рекреаційного центру у м. Одеса, що враховуватиме потреби місцевих жителів і відпочивальників, природно-кліматичні т...

Дипломна робота 2025/12/12
1