Дипломна робота
Кваліфікаційна робота здобувача вищої освіти
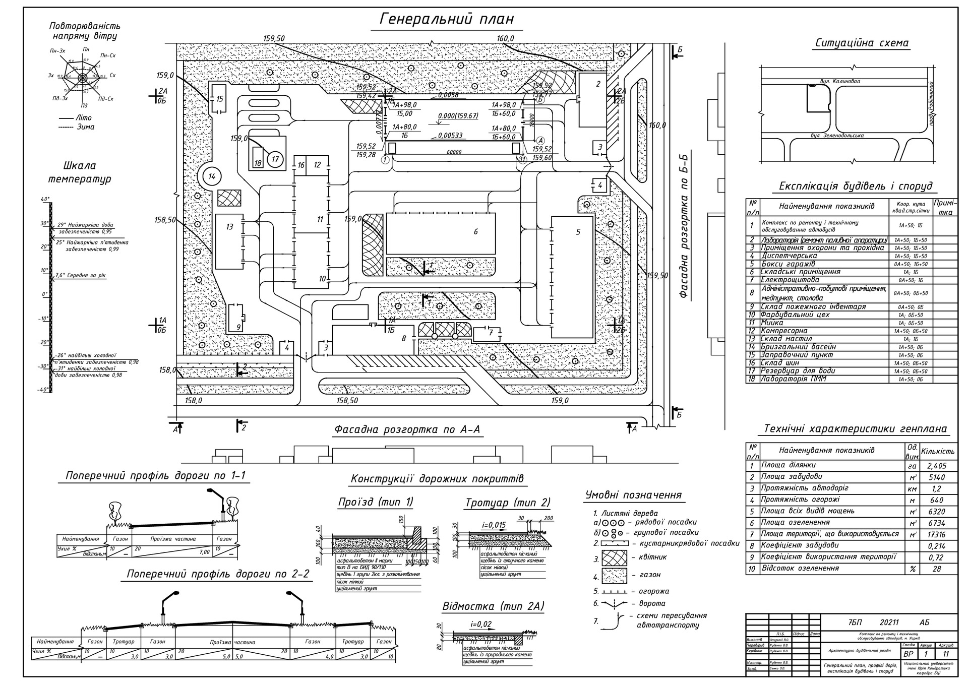
Комплекс по ремонту і технічному обслуговуванню автобусів, м. Харків
ID елемента: 11623
1 Медіафайлів
2023/10/23
Скопійовано в буфер обміну
