Дипломна робота
Кваліфікаційна робота здобувача вищої освіти
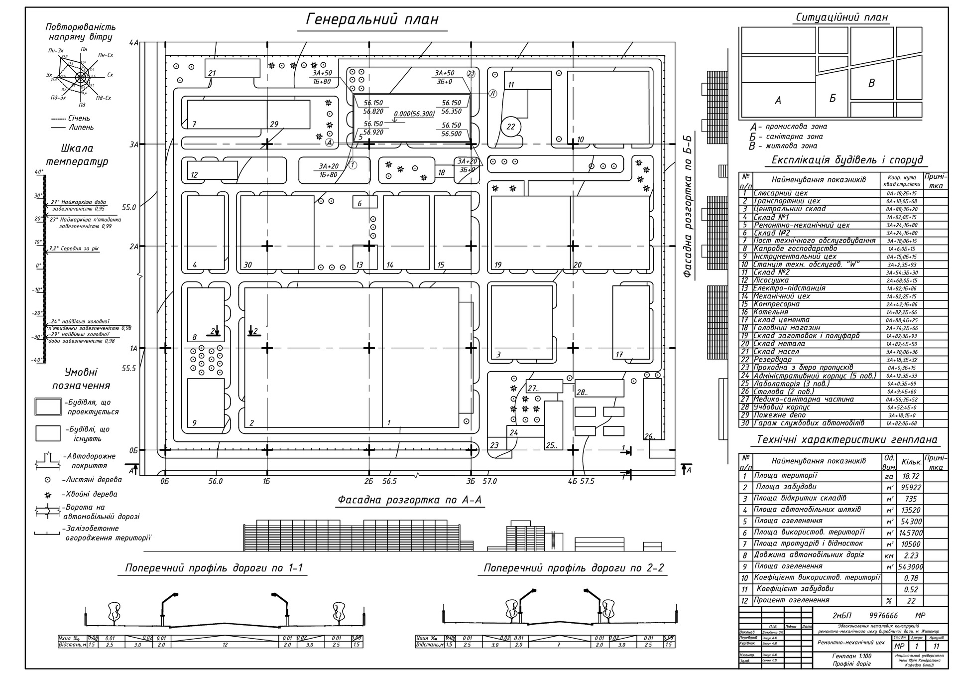
Удосконалення металевих конструкцій ремонтно-механічного цеху виробничої бази, м. Житомир
ID елемента: 10381
1 Медіафайлів
2023/10/24
Скопійовано в буфер обміну
