Огляд Елементів

Ознайомтеся з нашою колекцією елементів

Project_Abdelrazek_Ezzeldin_ Дипломна робота
Tourist hotel in Pavilosta, Latvia

The paper analyzes the design features of narrow-profile hotels, and offers a design proposal for...

2026/02/19 2
Елазаб Амро 402-Аі графічна частина бакалаврського проекта Дипломна робота
Leisure center in Mehring Сity, Germany

У роботі здійснено аналіз особливостей проектування культурних центрів, запропоновано проектну пр...

2026/02/19 2
Ібрахім М. 402-Аі графічна частина дипломного проекта Дипломна робота
Office centre in Budapest, Hungary

У роботі здійснено аналіз особливостей проектування офісних будівель, запропоновано проектну проп...

2026/02/19 2
Project_El_Mzibri_Houssin_ Дипломна робота
Exhibition Сentre in Poltava

У роботі здійснено аналіз особливостей проектування виставкових будівель, запропоновано проектну ...

2026/02/19 2
шергуі Хуссам 402-Аі графічна частина дипломного проекту бакалавра Дипломна робота
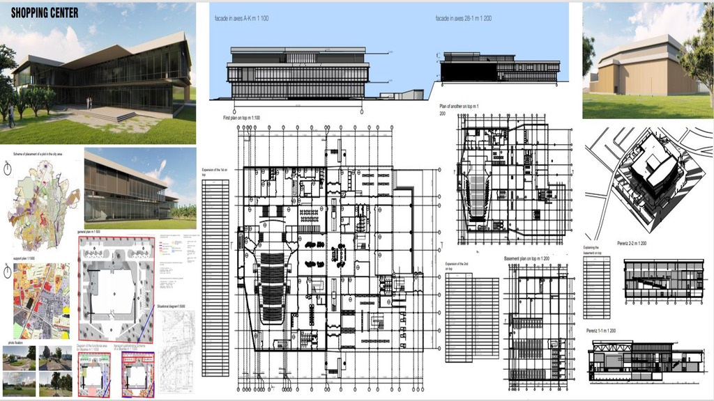
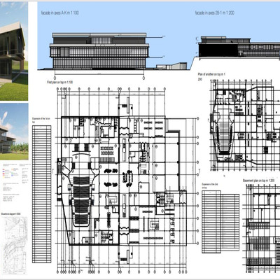
Shopping centre in Poltava

У роботі здійснено аналіз особливостей проектування торгівельних центрів, запропоновано проектну ...

2026/02/19 2
Мороз Дипломна робота
Аналіз енергоефективності громадської будівлі в с. Головач Полтавської області

Економія природних ресурсів та їх раціональне використання є важливою частиною економічної політ...

2024/06/27 1
Tourist hotel in Pavilosta, Latvia

The paper analyzes the design features of narrow-profile hotels, and offers a design proposal for a tourist hotel in the city of Pavilosta.

Дипломна робота 2026/02/19
2
Leisure center in Mehring Сity, Germany

У роботі здійснено аналіз особливостей проектування культурних центрів, запропоновано проектну пропозицію вирішення центру дозвілля у м. Мерінг.

Дипломна робота 2026/02/19
2
Office centre in Budapest, Hungary

У роботі здійснено аналіз особливостей проектування офісних будівель, запропоновано проектну пропозицію вирішення офісного центру у м. Будапешт.

Дипломна робота 2026/02/19
2
Exhibition Сentre in Poltava

У роботі здійснено аналіз особливостей проектування виставкових будівель, запропоновано проектну пропозицію вирішення виставкового центру у м. Полтава.

Дипломна робота 2026/02/19
2
Shopping centre in Poltava

У роботі здійснено аналіз особливостей проектування торгівельних центрів, запропоновано проектну пропозицію вирішення торговельного центру у м. Полтава.

Дипломна робота 2026/02/19
2
Аналіз енергоефективності громадської будівлі в с. Головач Полтавської області

Економія природних ресурсів та їх раціональне використання є важливою частиною економічної політики України та заходів, направлених на збереження планети для наступних поколінь за рахунок захист...

Дипломна робота 2024/06/27
1