Дипломна робота
Кваліфікаційна робота здобувача вищої освіти
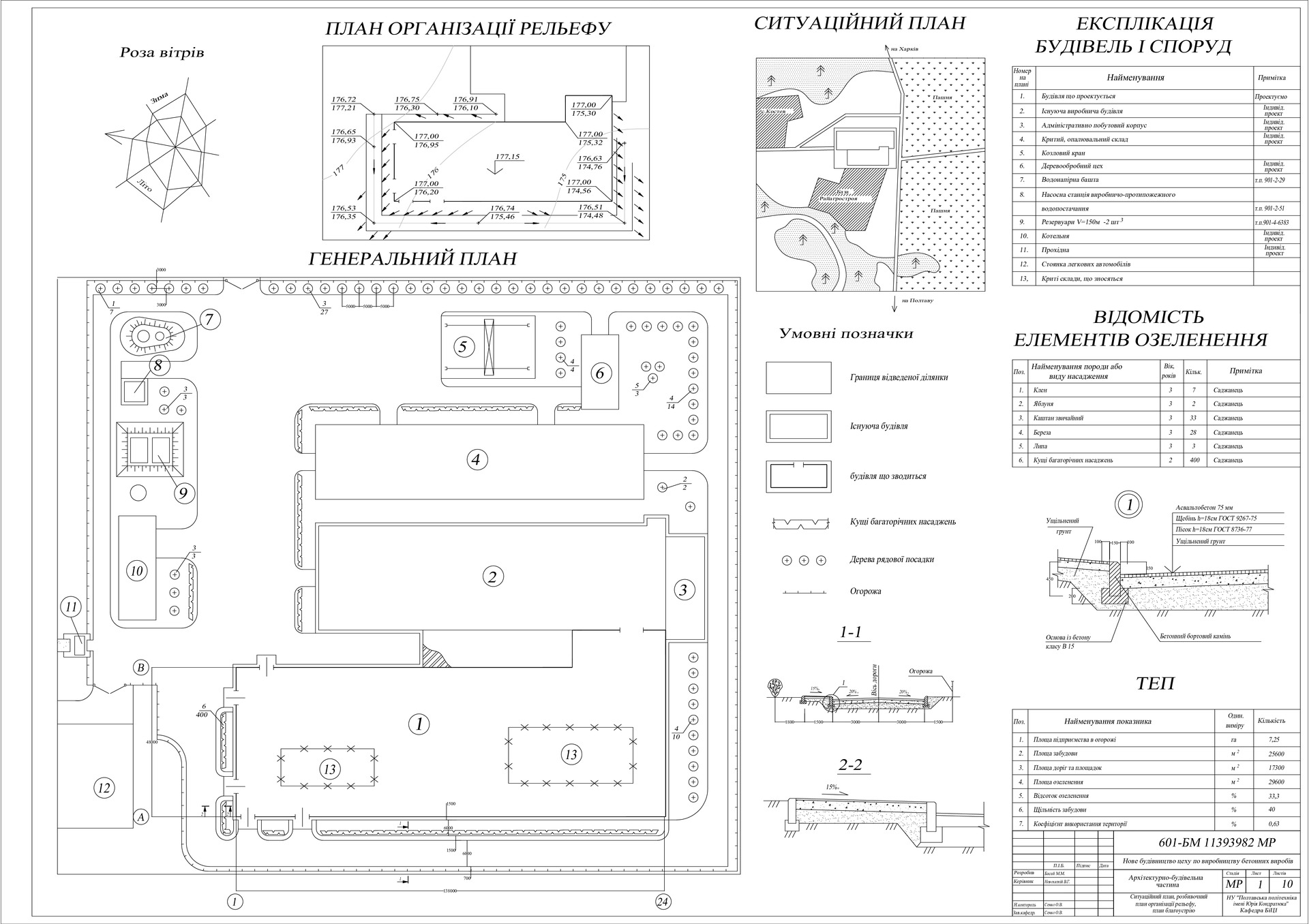
Нове будівництво цеху по виробництву бетонних виробів
ID елемента: 649
1 Медіафайлів
2025/12/12
Скопійовано в буфер обміну
