Дипломна робота
Кваліфікаційна робота здобувача вищої освіти
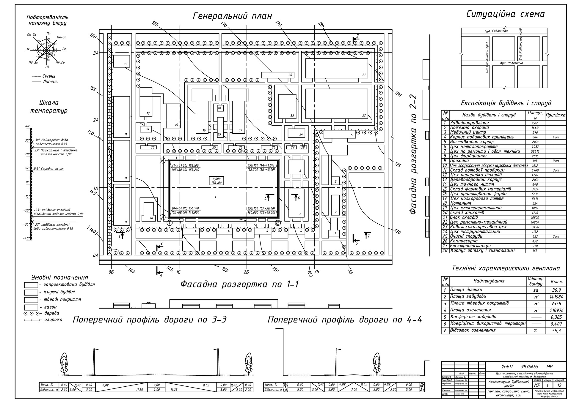
Цех по ремонту і технічному обслуговуванню спеціальної техніки, м. Запоріжжя
ID елемента: 12199
1 Медіафайлів
2023/10/25
Скопійовано в буфер обміну
