Дипломна робота
Кваліфікаційна робота здобувача вищої освіти
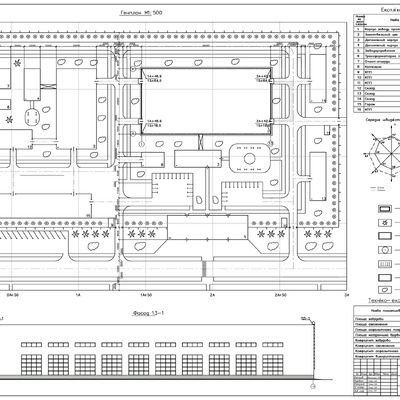
Механізований цех заводу спецтехніки «Техкомплект», м. Київ
ID елемента: 10727
1 Медіафайлів
2023/10/23
Скопійовано в буфер обміну
