Дипломна робота
Кваліфікаційна робота здобувача вищої освіти
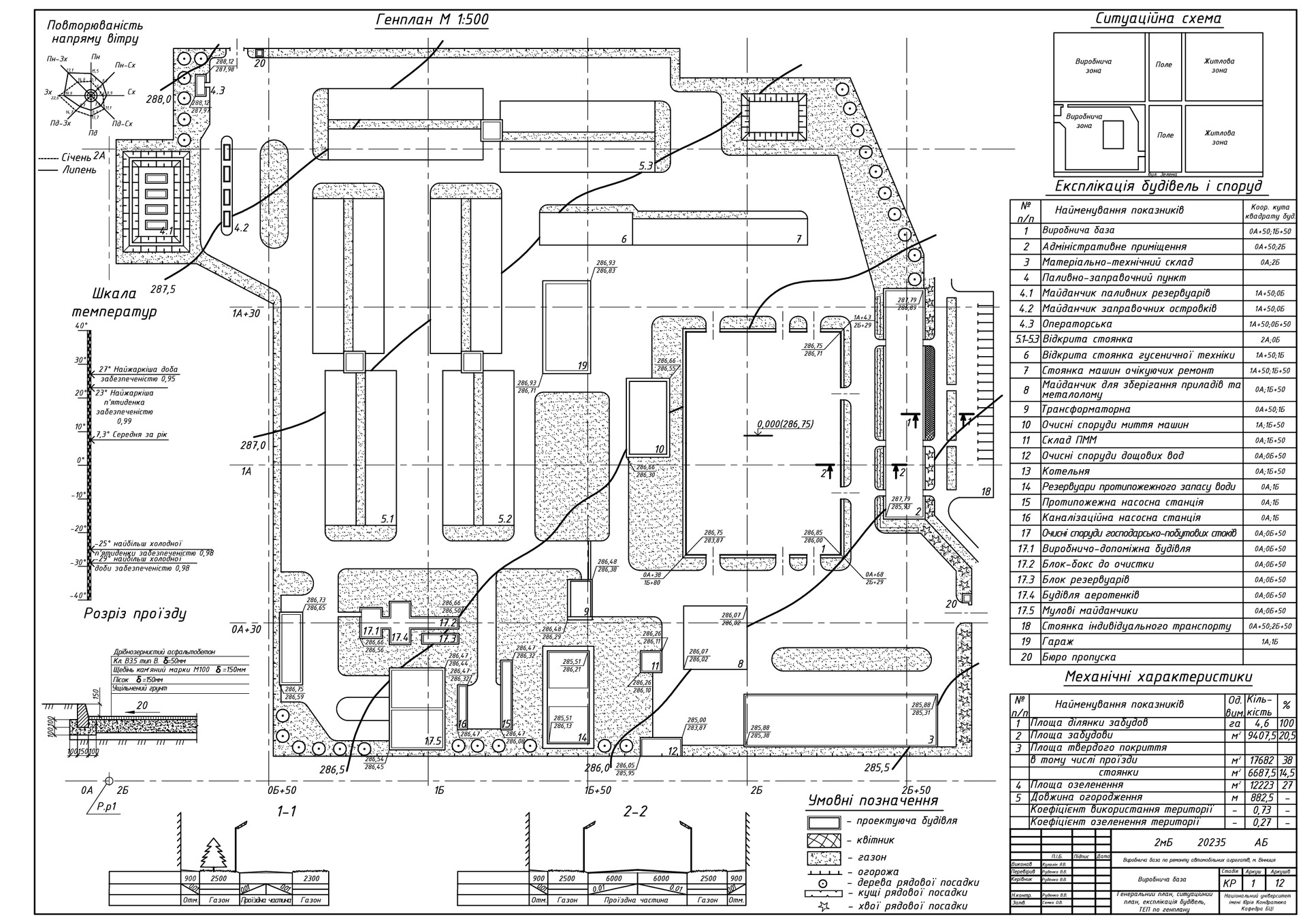
Виробнича база по ремонту автомобільних агрегатів, м. Вінниця
ID елемента: 10379
1 Медіафайлів
2023/10/23
Скопійовано в буфер обміну
