Дипломна робота
Кваліфікаційна робота здобувача вищої освіти
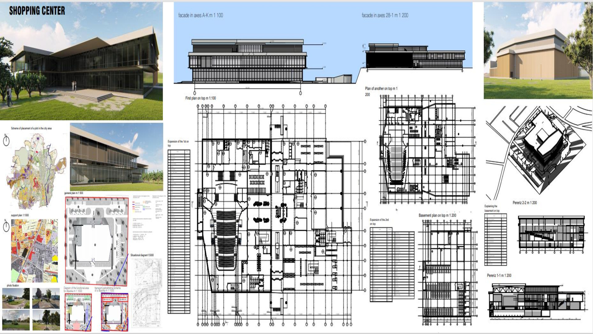
Shopping centre in Poltava
ID елемента: 9640
2 Media files
2026/02/19
Скопійовано в буфер обміну

