192 Будівництво та цивільна інженерія

Ознайомтеся з нашою колекцією елементів

203 елементів
Розширений пошук
23. Саєнко Тетяна Степанівна Дипломна робота
Аналіз умов інсоляції квартир житлових будинків мікрорайону «Садовий» у м. Полтава

Комфортність житлових приміщень залежать від багатьох факторів: температури та відносної вологост...

2023/10/23 1
22. Прозоров Дмитро Олександрович Дипломна робота
Аналіз розвитку нормативних вимог до забезпечення теплової надійності огороджувальних конструкцій

Проаналізовані зміни вимог до опору теплопередачі огороджувальних конструкцій в нормах проектуван...

2023/10/23 1
21. Притика Олександр Анатолійович Дипломна робота
Цех готової продукції заводу «Сумський фарфоровий завод», м. Суми

Рзроблено генеральний план ділянки будівництва, об'ємно-планувальне рішення та конструктивні ріше...

2023/10/23 1
20. Перетяка Віталій Сергійович Дипломна робота
Дослідження температурного режиму вузлів стін при термомодернізації житлових будівель

У роботі виконано дослідження місця положення світлопрозорих огороджуючих конструкцій в товщі сті...

2023/10/23 1
19. Озаров Павло Олександрович Дипломна робота
Дослідження впливу конструкцій, що застосовуються при улаштуванні прорізів в зовнішніх стінах, на вологісний режим огородження

Вологісний режим огороджувальних конструкцій залежить від властивостей матеріалу шарів огородженн...

2023/10/23 1
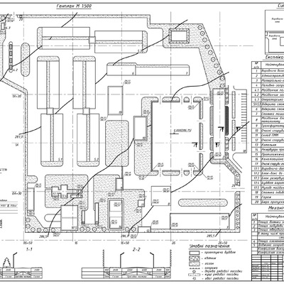
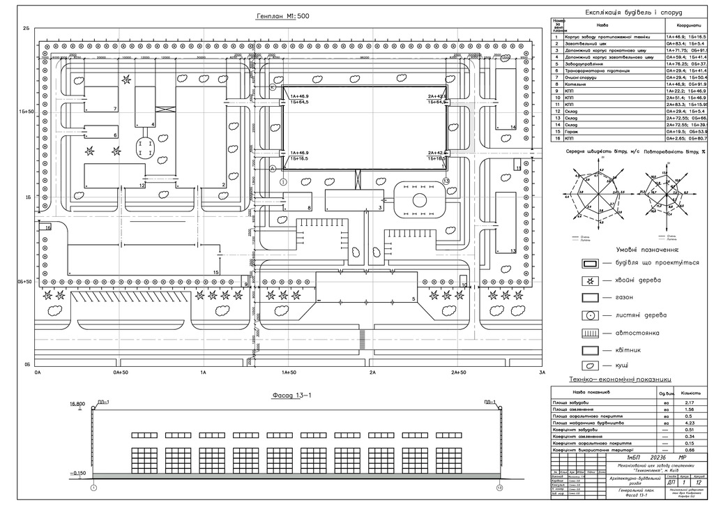
18. Москалець Тарас Миколайович Дипломна робота
Механізований цех заводу спецтехніки «Техкомплект», м. Київ

Кваліфікаційна робота виконана на актуальну тему, яка пов’язана з розвитком машинобудівної галузі...

2023/10/23 1
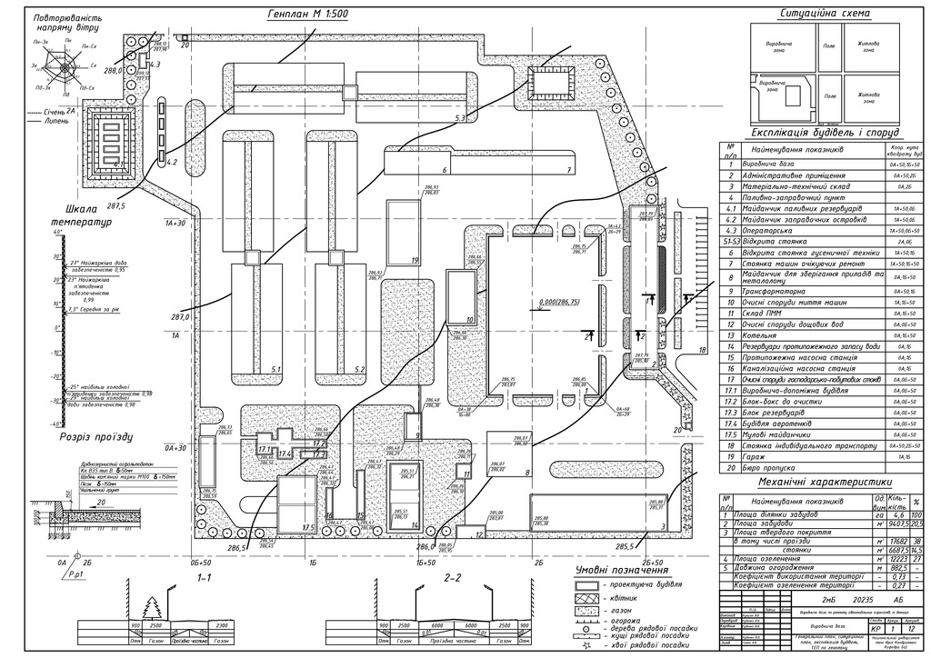
17. Кулагін Ярослав Володимирович Дипломна робота
Виробнича база по ремонту автомобільних агрегатів, м. Вінниця

Розроблено проект виробничої бази по ремонту автомобільних агрегатів у м. Вінниця.

2023/10/23 1
16. Коновал Аліна Миколаївна Дипломна робота
Дослідження впливу конструкцій, що застосовуються при улаштуванні прорізів в зовнішніх стінах, на температуру внутрішньої поверхні огородження

При улаштуванні віконних та дверних прорізів в зовнішніх стінах застосовують металеві профілі, що...

2023/10/23 1
15. Коваленко Ярослава Олегівна Дипломна робота
Аналіз функціонально-планувальних рішень будівель кафе

Архітектура – це штучне середовище, в якому протікає більша частина життя людини в усіх його цикл...

2023/10/23 1
14.  Івженко Андрій Юрійович Дипломна робота
Дослідження вологісного стану цегляних пілястр

Аналіз існуючих досліджень по покрашенню вологісного стану огороджувальних конструкцій. Досліджен...

2023/10/23 1
13. Жепка Ігор Васильович Дипломна робота
Аналіз характерних дефектів при визначенні технічного стану будівель

При проведенні ремонту та реконструкції об’єктів нерухомості для прийняття адекватного технічного...

2023/10/23 1
12. Дячков Юрій Володимирович Дипломна робота
Аналіз планувальних рішень бази автотранспортного комплексу з підвищенням енергоефективності існуючих будівель в м. Рівне

Серед багатьох проблем, пов’язаних з гармонійним розвитком сучасних міст і селищ, одне з найважли...

2023/10/23 1
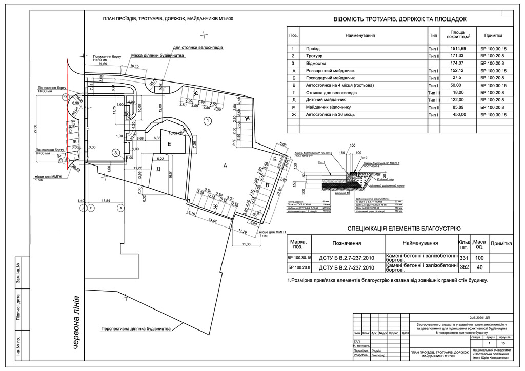
11. Гнилосир Наталія Олександрівна Дипломна робота
Застосування стандартів управління проектами, інжинірингу та девелопмент для підвищення ефективності будівництва 8-поверхового житлового будинку

Проблему забезпечення попиту на житло в умовах міста допомагає вирішити будівництво багатоповерхо...

2023/10/23 1
10. Власенко Микола Сергійович Дипломна робота
Капітальний ремонт будинку культури за адресою: вул. Центральна, 4, с. Великий Тростянець Полтавської області

Відновлення об’єктів громадського призначення на сьогодні стала актуальною, так як будівлі, що ек...

2023/10/23 1
9. Штандель Олег Сергійович Дипломна робота
Підвищення ефективності капітального ремонту і реконструкції будівель історичної забудови

Значний обсяг капітального фонду, що зберігся, особливо у великих містах, свідчить про те, що под...

2023/10/23 1
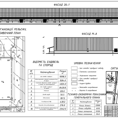
8. Пенц Марина Володимирівна Дипломна робота
Цех металевих конструкцій в складі комплексу з виготовлення будівельних виробів, м. Ірпінь

У роботі спроектовано цех металевих конструкцій в складі комплексу з виготовлення будівельних вир...

2023/10/23 1
7. Оніщенко Віталій Олександрович Дипломна робота
Конструктивні особливості при капітальному ремонті навчальних закладів Полтавської області

Розробка комплексу технічних і організаційних заходів, що сприяють продовженню життєвого циклу ек...

2023/10/23 1
6. Горшковоз Ігор Сергійович Дипломна робота
Дослідження організаційно-технологічних рішень при реконструкції будівель навчально-виховних закладів

Неповторна своєрідність, історична та архітектурна цінність забудови багатьох міст та поселень по...

2023/10/23 1
5. Бабенко Олександра Ігорівна Дипломна робота
Принципи формування архітектурно-планувальної організації торгово-розважальних центрів

Торгово-розважальні багатофункціональні центри – як об’єкти з масовим перебуванням людей – вимага...

2023/10/23 1
4. Пашко Віталій Едуардович Дипломна робота
Аналіз технічного стану будівель дошкільних навчальних закладів у залежності від конструктивних особливостей будівель

Сучасні будівлі дошкільних освітніх закладів з урахуванням застосування нових освітніх стандартів...

2023/10/23 2
3. Борисовець Олександр Ігорович Дипломна робота
Дослідження умов інсоляції житлового будинку у м. Полтава

Інсоляція приміщень поряд з їх освітленістю, температурно-вологісним та шумовим режимом відіграют...

2023/10/23 1
2. Андрієць Катерина Іванівна Дипломна робота
Міцність бетону в замкнутому просторі металевої труби при стисканні

Шляхом критичного аналізу сучасного стану науковотехнічних досягнень у межах кола питань роботи с...

2023/10/23 1
1. Гаврилко Анастасія Дмитрівна Дипломна робота
Впровадження технологій "пасивного будинку" в індивідуальному житловому будівництві

Необхідність термомодернізації існуючих будівель на території України постійно зростає на фоні пі...

2023/10/23 1
2022 мБА Хачатурян А.Г. Дипломна робота
Оптимізація мережі автомобільних доріг загального користування у південній частині Полтавського району (комплексна робота)

У роботі обґрунтовано нові показники для оцінювання ефективності регіональної мережі автомобільни...

2023/10/19 1
Аналіз умов інсоляції квартир житлових будинків мікрорайону «Садовий» у м. Полтава

Комфортність житлових приміщень залежать від багатьох факторів: температури та відносної вологості повітря у приміщенні, рухомості повітря в ньому, температури внутрішніх поверхонь зовнішніх огород...

Дипломна робота 2023/10/23
1
Аналіз розвитку нормативних вимог до забезпечення теплової надійності огороджувальних конструкцій

Проаналізовані зміни вимог до опору теплопередачі огороджувальних конструкцій в нормах проектування різних років та їх вплив на теплові характеристики стін житлових і громадських будівель. У роботі...

Дипломна робота 2023/10/23
1
Цех готової продукції заводу «Сумський фарфоровий завод», м. Суми

Рзроблено генеральний план ділянки будівництва, об'ємно-планувальне рішення та конструктивні рішення для будівництва цеху готової продукції заводу «Сумський фарфоровий завод».

Дипломна робота 2023/10/23
1
Дослідження температурного режиму вузлів стін при термомодернізації житлових будівель

У роботі виконано дослідження місця положення світлопрозорих огороджуючих конструкцій в товщі стін різного конструктивного матеріалу, з метою створення методики для визначення положення вікон різни...

Дипломна робота 2023/10/23
1
Дослідження впливу конструкцій, що застосовуються при улаштуванні прорізів в зовнішніх стінах, на вологісний режим огородження

Вологісний режим огороджувальних конструкцій залежить від властивостей матеріалу шарів огородження, послідовності їх розташування та товщини, параметрів повітря з боків огородження та інших факторі...

Дипломна робота 2023/10/23
1
Механізований цех заводу спецтехніки «Техкомплект», м. Київ

Кваліфікаційна робота виконана на актуальну тему, яка пов’язана з розвитком машинобудівної галузі України. Актуальною проблемою наразі є забезпечення українських міст якісною та сучасною спецтехнік...

Дипломна робота 2023/10/23
1
Виробнича база по ремонту автомобільних агрегатів, м. Вінниця

Розроблено проект виробничої бази по ремонту автомобільних агрегатів у м. Вінниця.

Дипломна робота 2023/10/23
1
Дослідження впливу конструкцій, що застосовуються при улаштуванні прорізів в зовнішніх стінах, на температуру внутрішньої поверхні огородження

При улаштуванні віконних та дверних прорізів в зовнішніх стінах застосовують металеві профілі, що підтримують частину стіни над прорізом та підсилюють простінки по боках прорізів. Металеві конструк...

Дипломна робота 2023/10/23
1
Аналіз функціонально-планувальних рішень будівель кафе

Архітектура – це штучне середовище, в якому протікає більша частина життя людини в усіх його циклах: побуті, щоденній праці, суспільній діяльності та відпочинку. Людина завжди намагається забезпечи...

Дипломна робота 2023/10/23
1
Дослідження вологісного стану цегляних пілястр

Аналіз існуючих досліджень по покрашенню вологісного стану огороджувальних конструкцій. Дослідження вологісного стану в зоні пілястри. Дослідження впливу утеплення з внутрішньої сторони стіни на во...

Дипломна робота 2023/10/23
1
Аналіз характерних дефектів при визначенні технічного стану будівель

При проведенні ремонту та реконструкції об’єктів нерухомості для прийняття адекватного технічного рішення необхідні детальний аналіз стану несучих будівельних конструкцій з виявленням пошкоджень, р...

Дипломна робота 2023/10/23
1
Аналіз планувальних рішень бази автотранспортного комплексу з підвищенням енергоефективності існуючих будівель в м. Рівне

Серед багатьох проблем, пов’язаних з гармонійним розвитком сучасних міст і селищ, одне з найважливіших місць посідають проблеми функціонування громадського пасажирського транспорту. Не випадково в ...

Дипломна робота 2023/10/23
1
Застосування стандартів управління проектами, інжинірингу та девелопмент для підвищення ефективності будівництва 8-поверхового житлового будинку

Проблему забезпечення попиту на житло в умовах міста допомагає вирішити будівництво багатоповерхових житлових будинків, що є основним типом житла в містах нашої країни. З метою економії та раціонал...

Дипломна робота 2023/10/23
1
Капітальний ремонт будинку культури за адресою: вул. Центральна, 4, с. Великий Тростянець Полтавської області

Відновлення об’єктів громадського призначення на сьогодні стала актуальною, так як будівлі, що експлуатуються, не відповідають сучасним експлуатаційним вимогам та енергоефективності. Зросли вимоги ...

Дипломна робота 2023/10/23
1
Підвищення ефективності капітального ремонту і реконструкції будівель історичної забудови

Значний обсяг капітального фонду, що зберігся, особливо у великих містах, свідчить про те, що подальший розвиток і вдосконалення забудови буде тісно пов’язаний з реконструкцією та капітальними ремо...

Дипломна робота 2023/10/23
1
Цех металевих конструкцій в складі комплексу з виготовлення будівельних виробів, м. Ірпінь

У роботі спроектовано цех металевих конструкцій в складі комплексу з виготовлення будівельних виробів у м. Ірпінь. Цех металевих конструкцій в складі комплексу з виготовлення будівельних виробів пр...

Дипломна робота 2023/10/23
1
Конструктивні особливості при капітальному ремонті навчальних закладів Полтавської області

Розробка комплексу технічних і організаційних заходів, що сприяють продовженню життєвого циклу експлуатації будівлі навчального закладу, здійснюваних при ремонті та реконструкції.

Дипломна робота 2023/10/23
1
Дослідження організаційно-технологічних рішень при реконструкції будівель навчально-виховних закладів

Неповторна своєрідність, історична та архітектурна цінність забудови багатьох міст та поселень потребує її збереження поряд із необхідністю проведення комплексу заходів щодо підвищення довговічност...

Дипломна робота 2023/10/23
1
Принципи формування архітектурно-планувальної організації торгово-розважальних центрів

Торгово-розважальні багатофункціональні центри – як об’єкти з масовим перебуванням людей – вимагають вирішення питань, пов’язаних з безпечним функціонуванням і надійністю роботи інженерних систем, ...

Дипломна робота 2023/10/23
1
Аналіз технічного стану будівель дошкільних навчальних закладів у залежності від конструктивних особливостей будівель

Сучасні будівлі дошкільних освітніх закладів з урахуванням застосування нових освітніх стандартів та коливань демографічної структури населення повинні відповідати таким вимогам, як: мобільність, г...

Дипломна робота 2023/10/23
2
Дослідження умов інсоляції житлового будинку у м. Полтава

Інсоляція приміщень поряд з їх освітленістю, температурно-вологісним та шумовим режимом відіграють значну роль в забезпеченості комфортного режиму проживання. Нормування та розрахунок інсоляції най...

Дипломна робота 2023/10/23
1
Міцність бетону в замкнутому просторі металевої труби при стисканні

Шляхом критичного аналізу сучасного стану науковотехнічних досягнень у межах кола питань роботи сталезалізобетонних конструкцій, було визначено, що, незважаючи на велику кількість уже проведених до...

Дипломна робота 2023/10/23
1
Впровадження технологій "пасивного будинку" в індивідуальному житловому будівництві

Необхідність термомодернізації існуючих будівель на території України постійно зростає на фоні підвищення тарифів на такі послуги як опалення, гаряче водопостачання та електроенергія. Стандарт Паси...

Дипломна робота 2023/10/23
1
Оптимізація мережі автомобільних доріг загального користування у південній частині Полтавського району (комплексна робота)

У роботі обґрунтовано нові показники для оцінювання ефективності регіональної мережі автомобільних доріг: середньої по громаді відстані до центра громади та центра району, а також відносної середнь...

Дипломна робота 2023/10/19
1